Продажа 2-комнатной квартиры, 43 м², мкр-н 13

12 000 000 ₸ / 279 070 ₸ за м²
г. Караганда, Майкудук
Улица
мкр-н 13
Количество комнат
2
Этаж
1 из 5
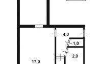
Площадь
43 м², кухня – 5 м²
Год постройки
1966
Материал стен
панельный
Площадь кухни
5
В залоге
Нет
Продам отличную 2-комнатную квартиру на 13 мкр, на 1 этаже 5-этажного панельного дома 1966 г постройки. Заезжай и живи! Остановка рядом!

🔑 Площадь — 43,9 м² Площадь кухни - 5 м²
💼 Документы в порядке

🔹 Квартира не угловая
🔹 Полы в квартире ровные, линолеум
🔹 Установлены новые стеклопакеты, решетки есть
🔹 Установлены деревянные межкомнатные двери и металлическая входная дверь
🔹 Косметический ремонт свежий
🔹 Пластиковая разводка, стояки, счетчики
🔹 Санузел раздельный
🔹 Очень теплая зимой
🔹 Комнаты раздельные на 2 стороны
🔹 Подъезд чистый, подвал сухой, имеются 2 кладовки

— Остается частично мебель и техника
— Хорошие и доброжелательные соседи
— В шаговой доступности вся необходимая инфраструктура
— Во дворе-парковка для жильцов дома
— Рядом-Гимназия №9, Средняя школа №65, Средняя школа №54, Детский сад "Балбобек"
Супермаркет Аян
— Ближайшие остановки — 13 микрорайон,Автостанция Майкудук, удобный выезд в любую часть
города

⚖️ Юридическое сопровождение — гарантия чистоты и безопасности сделки

📞 Звоните прямо сейчас! Успейте забронировать просмотр
Опубликовано: 21.10.2025
Номер объявления: 3571887

Риэлтор агентства недвижимости ЦАН

Риэлтор агентства недвижимости
Татьяна Цой
Закажите обратный звонок
+7 707 Показать телефон

Пожаловаться на объявление
Продажа 2-комнатной квартиры, 43 м², мкр-н 13 в Караганде
Продажа 2-комнатной квартиры, 43 м², мкр-н 13 в Караганде - фото 2
Продажа 2-комнатной квартиры, 43 м², мкр-н 13 в Караганде - фото 3
Продажа 2-комнатной квартиры, 43 м², мкр-н 13 в Караганде - фото 4