Продажа 2-комнатной квартиры, 78 м², ул. Радостовца

68 000 000 ₸ / 871 795 ₸ за м²
г. Алматы, Бостандыкский р-н
Улица
ул. Радостовца
Количество комнат
2
Этаж
4 из 9
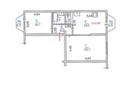
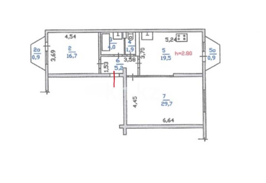
Площадь
78 м², кухня – 20 м²
Год постройки
2014
Тип дома
монолитный
Площадь кухни
20
Состояние
хороший ремонт
Санузел
раздельный
В залоге
Нет
Ищете уютную и комфортную квартиру в Алматы? Обратите внимание на эту прекрасную просторную 2-комнатную квартиру, выставленную на продажу!

Квартира имеет удобную продуманную улучённую планировку: основная комната довольно большая, площадью 29,7 кв.м., что делает ее идеальным местом для проведения семейных торжеств, вечеринок или просто уютного отдыха, спальня 16.7 кв.м, имеет выход на застекленную лоджию. Просторная изолированная кухня площадью 20 кв. м. предоставляет достаточно места для приготовления вкусной еды и приема гостей. Раздельный санузел.

Дом находится во дворах, вдали от шумных улиц. Все окна выходят в тихий внутренний двор — это значит, что спать Вы можете спокойно с открытыми окнами. Две квартиры на площадке, что гарантирует низкий уровень шума и больше личного пространства. Бонус покупателю – небольшое кладовое помещение, для удобства хранения личных вещей.

Имеется парковочное место под навесом, чтобы ваш автомобиль был защищён от погодных условий. Во внутреннем дворе установлены скамейки, игровая детская площадки. Круглосуточная охрана дома для вашего спокойствия и безопасности.

Дом находится в престижном Бостандыкском районе, удобно расположенном вблизи всей необходимой инфраструктуры, с отличным транспортным сообщением во все части города. В нескольких минутах ходьбы школа 93, детсады №137,152, спортзалы, мед. центры, КЦДС «Атакент», где местные жители любят прогуляться теплыми вечерами.

Квартира обладает прекрасной аурой и станет уютным домом для тех, кто ищет комфортное, удобное и гостеприимное жилое пространство.

Покупателю данной квартиры мы дарим страховой полис на сумму 1 875 000 тг. Вы получите в подарок страховку на случаи: причинения ущерба вашей недвижимости, кражи и факта причинения вреда третьим лицам.
Опубликовано: 07.12.2025
Номер объявления: 3592370

Частный риэлтор

Елена Дроздова
Закажите обратный звонок
+7 707 Показать телефон

Пожаловаться на объявление
Продажа 2-комнатной квартиры, 78 м², ул. Радостовца в Алматы
Продажа 2-комнатной квартиры, 78 м², ул. Радостовца в Алматы - фото 2
Продажа 2-комнатной квартиры, 78 м², ул. Радостовца в Алматы - фото 3
Продажа 2-комнатной квартиры, 78 м², ул. Радостовца в Алматы - фото 4
Продажа 2-комнатной квартиры, 78 м², ул. Радостовца в Алматы - фото 5
Продажа 2-комнатной квартиры, 78 м², ул. Радостовца в Алматы - фото 6
Продажа 2-комнатной квартиры, 78 м², ул. Радостовца в Алматы - фото 7
Продажа 2-комнатной квартиры, 78 м², ул. Радостовца в Алматы - фото 8
Продажа 2-комнатной квартиры, 78 м², ул. Радостовца в Алматы - фото 9
Продажа 2-комнатной квартиры, 78 м², ул. Радостовца в Алматы - фото 10
Продажа 2-комнатной квартиры, 78 м², ул. Радостовца в Алматы - фото 11
Продажа 2-комнатной квартиры, 78 м², ул. Радостовца в Алматы - фото 12
Продажа 2-комнатной квартиры, 78 м², ул. Радостовца в Алматы - фото 13
Продажа 2-комнатной квартиры, 78 м², ул. Радостовца в Алматы - фото 14
Продажа 2-комнатной квартиры, 78 м², ул. Радостовца в Алматы - фото 15
Продажа 2-комнатной квартиры, 78 м², ул. Радостовца в Алматы - фото 16
Продажа 2-комнатной квартиры, 78 м², ул. Радостовца в Алматы - фото 17