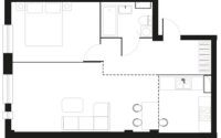
Продажа 2-комнатной квартиры, 62 м², ул. Черепанова, дом 26/1

64 000 000 ₸ / 1 032 258 ₸ за м²
г. Алматы, Ауэзовский р-н на карте
Улица
ул. Черепанова, 26/1
Название ЖК
Количество комнат
2
Этаж
3 из 6
Площадь
62 м²
Год постройки
2025
Материал стен
монолитно-каркасный
В залоге
Нет
Продаётся 3-комнатная квартира в сейсмостойком доме бизнес-класса. Витражные окна, вид на закат. Изолированные комнаты, улучшенная планировка, двери с кодовым замком. Документы и ключи на руках. Возможен торг.
Опубликовано: 25.09.2025
Номер объявления: 3485042

Частное лицо

+7 707 Показать телефон
Пожаловаться на объявление
Продажа 2-комнатной квартиры, 62 м², ул. Черепанова, дом  26/1 в Алматы