Ход строительства
мкр-н 32А, 1 стр
4 квартал 2025
строится
Квартиры и помещения ЖК Aqbosaga от застройщика
Цены и наличие актуальны от 19 сентября 2025
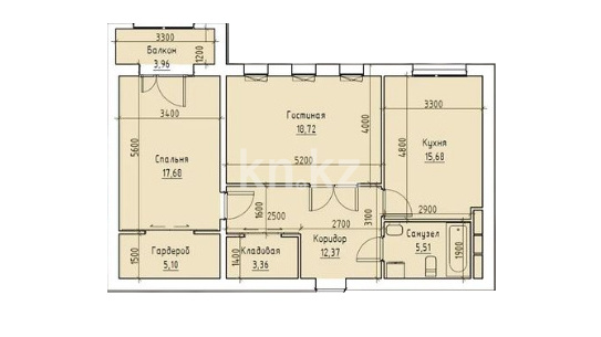
2-комнатная
55,5 – 82,38 м²
от 220 000 ₸  / м²
от 12 210 000 ₸
3-комнатная
126,21 – 139,18 м²
от 220 000 ₸  / м²
от 27 766 200 ₸
4-комнатная
154,35 – 182,37 м²
от 220 000 ₸  / м²
от 33 957 000 ₸
Характеристика комплекса
Класс ЖК
бизнес
Умный дом
нет
Высота потолков
3.3 м
Технология строительства
кирпичная
Паркинг
надземный
Варианты отделки
черновая
Лифт
пассажирский
Отопление
центральное
Отзывы
0 отзывов о ЖК Aqbosaga
0.0
Написать отзыв
Загрузка...
Описание
Жилой комплекс «Aqbosaga» расположен всего в километре от Ботанического сада и в пяти километрах от побережья и Приморского бульвара, комплекс сочетает в себе преимущества городской инфраструктуры и близость к природе.

Проект состоит из трёх многосекционных зданий, выполненных в едином архитектурном стиле. При строительстве учитываются особенности сейсмической активности региона и его климат, а основой технологии строительства стала классическая кирпичная кладка. Наружные стены надежно утеплены, что гарантирует хорошую теплоизоляцию и энергоэффективность. Фасады украшаются гранитом, декоративной штукатуркой и 3D-панелями. Цветовая палитра выдержана в благородных бежево-коричневых тонах. Здания выделяются архитектурной лепниной, арочными окнами, ажурными коваными балконами, изящными карнизами и выразительными входными группами.

Подъезды оформлены в соответствии со стандартами жилья бизнес-класса. Внутреннее пространство выдержано в спокойных, гармоничных тонах, используются натуральные, экологичные материалы, создающие атмосферу уюта и респектабельности.

Благоустройство

Территория жилого комплекса полностью закрыта и обустроена для безопасного и разнообразного отдыха:

  • игровые зоны, рассчитанные на детей разных возрастов;
  • площадки с уличными тренажёрами для занятий спортом;
  • уютные зоны отдыха с фонтаном, прогулочными аллеями, эко-беседками и ухоженным ландшафтом.

За безопасность отвечает круглосуточная охрана и система видеонаблюдения, а на въездах оборудованы КПП со шлагбаумами. Для жильцов и гостей предусмотрены удобные парковочные места.

Озеленение территории включает посадку декоративных деревьев и кустарников, установку современных светильников и обустройство широких проездов и пешеходных дорожек, вымощенных тротуарной плиткой.

ЖК Aqbosaga

Актау
Цена
Застройщик: от 220 000 ₸  / м²
Статус
Строится
Идут продажи от застройщика
Застройщик
Aisar Stroi
Примечание
Целью публикации информации о ЖК является определение спроса на данный продукт. Однако, договоры о долевом участии в жилищном строительстве будут заключены только после того, как будет достигнуто соглашение о предоставлении гарантии от Фонда гарантирования или получено разрешение на привлечение денежных средств от местных исполнительных органов.