Ход строительства
ул. Арайлы, 6/2 стр / 5 пер.
4 квартал 2025
История срока сдачи
08.10.2024
4 квартал 2024
25.12.2024
2 квартал 2025
09.07.2025
3 квартал 2025
03.10.2025
4 квартал 2025
строится
Средняя школа №189
ул. Тауасарулы, 27
Школа №70
мкр. Казахфильм, 15а
Школа №88
мкр. Казахфильм, 34
Школа №183
ул. Жангир хана, 18
Школа нового поколения "NGS"
ул. Жангир хана, 4
Ясли-сад №83
мкр. Казахфильм, 9
Торговый центр "Esentai Mall"
пр. Аль-Фараби, 77/8
Супермаркет "Magnum"
ул. Радостовца, 292
Продажа от застройщика
Актуально на 6 ноября 2025
1-комнатная
55,14 м²
от 790 000 ₸  / м²
от 43 560 600 ₸
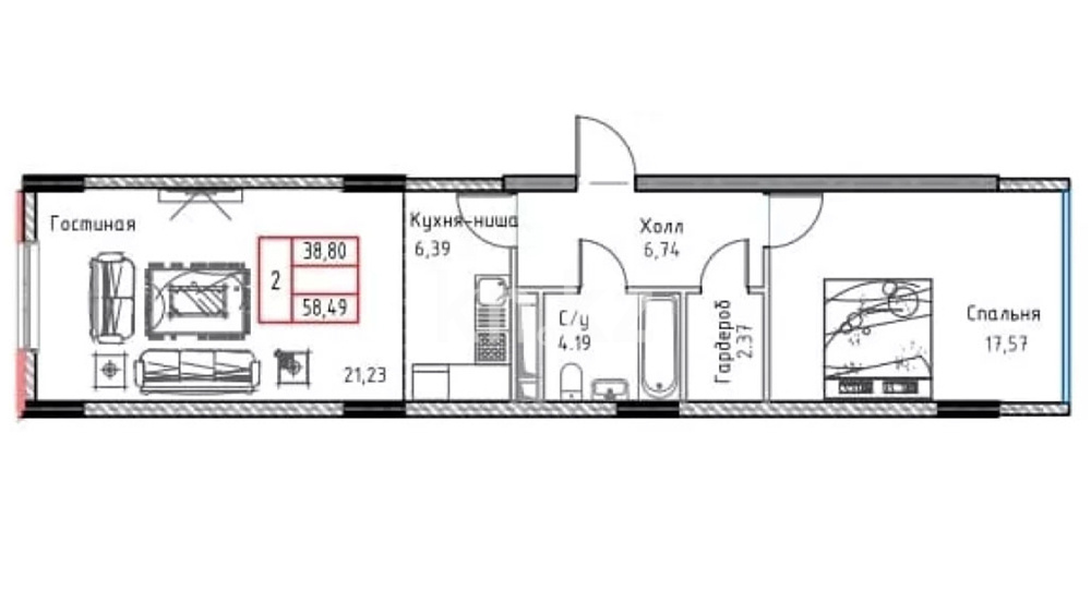
2-комнатная
58,49 м²
от 790 000 ₸  / м²
от 46 207 100 ₸
3-комнатная
83,63 м²
от 790 000 ₸  / м²
от 66 067 700 ₸
4-комнатная
138,77 м²
от 790 000 ₸  / м²
от 109 628 301 ₸
Характеристика комплекса
Класс ЖК
бизнес
Умный дом
нет
Высота потолков
3.1 м
Технология строительства
монолитная
Этажность
3
Паркинг
надземный
Варианты отделки
предчистовая
Лифт
нет
Отопление
автономное
Квартиры от других продавцов
2-комнатная
55.2 м²
от 896 739 ₸  / м²
от 49 500 000 ₸
3-комнатная
83 м²
от 1 000 000 ₸  / м²
от 83 000 000 ₸
Динамика цен за м² от застройщика
Отзывы
0 отзывов о ЖК Verona
0.0
Написать отзыв
Загрузка...
Описание
Жилой комплекс «Verona» расположен в районе Ремизовка (в 12 минутах езды от Esentai City).

В комплексе представлены 1-, 2- и 3-комнатные квартиры площадью от 55 до 83 кв. метров. Система «Умный дом» в каждой квартире. Имеется просторная терраса на крыше.

Благоустроенная территория комплекса:

  • декоративный фонтан;
  • уютные беседки в итальянском стиле;
  • прогулочные зоны;
  • детские и спортивные площадки;
  • обилие зеленых насаждений.

3 заезда на территорию. Для машин жильцов предусмотрены крытые парковочные места, а также гостевая парковка.

ЖК Verona

Алматы, Бостандыкский р-н
Цена
Застройщик: от 790 000 ₸  / м²
Другие продавцы: от 896 739 ₸  / м²
Статус
Строится
Идут продажи от застройщика
Застройщик
Verona Remizovka
Примечание
Целью публикации информации о ЖК является определение спроса на данный продукт. Однако, договоры о долевом участии в жилищном строительстве будут заключены только после того, как будет достигнуто соглашение о предоставлении гарантии от Фонда гарантирования или получено разрешение на привлечение денежных средств от местных исполнительных органов.
Квартиры от других продавцов