Ход строительства
ул. Култегин, 16 стр
2 квартал 2026
строится
Школа-лицей №71
ул. Омарова, 4
Neotech Digital School
ул. Омарова, 10
Школа-гимназия №78
ул. Нуршайыкова, 8
Quantum STEM School
ул. Е-899, 2
Школа-лицей №79
ул. Нарикбаева, 3
Ясли-сад №98 "Мирас"
ул. Култегин, 17/1
Детский сад №86 "Зияткер"
ул. Маметовой, 4
Детский сад №90 "Еркежан"
ул. Маметовой, 6
Детский сад №88 "Баян сұлу"
ул. Кыз-Жибек, 40а
Частный детский сад "Inclusion"
ул. Нуршайыкова, 10/2
Детский сад "Smart baby"
ул. Айтматова, 36
ТРЦ "Хан Шатыр"
пр. Туран, 37
ТРЦ "Asia Park"
пр. Кабанбай батыра, 21
ТРЦ "Green Mall"
ул. Сыганак, 17п
Сеть супермаркетов "Small"
ул. Айтматова, 44
Продажа от застройщика
Актуально на 2 апреля 2026
1-комнатная
35,7 – 47,2 м²
от 560 000 ₸  / м²
от 22 134 000 ₸
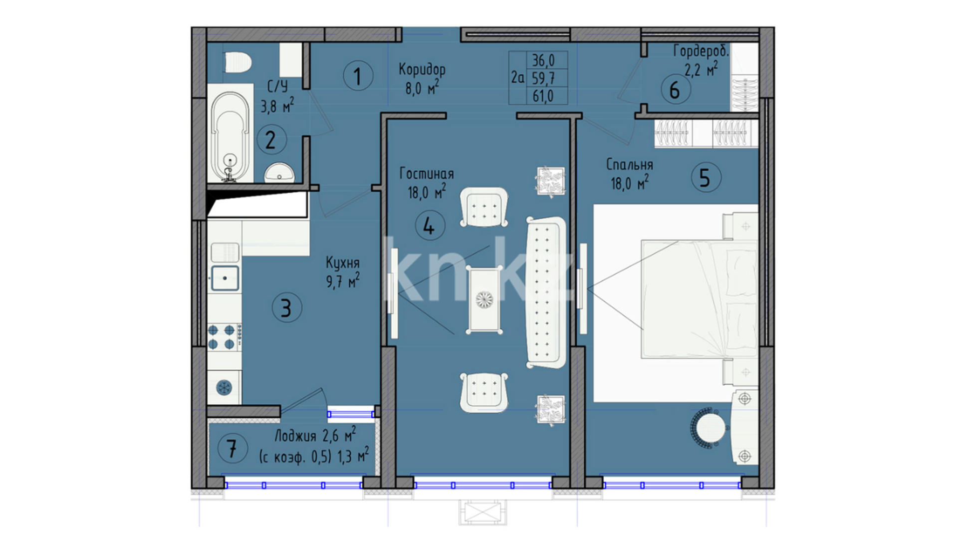
2-комнатная
49,1 – 76,7 м²
от 560 000 ₸  / м²
от 27 496 000 ₸
3-комнатная
82,9 – 99,8 м²
от 560 000 ₸  / м²
от 46 424 000 ₸
4-комнатная
118,6 – 140,7 м²
от 560 000 ₸  / м²
от 73 532 000 ₸
154,2 м²
от 1 300 000 ₸  / м²
от 200 460 000 ₸
Условия продажи
Рассрочка
Характеристика комплекса
Класс ЖК
комфорт
Умный дом
нет
Высота потолков
2.9 м
Технология строительства
монолитно-каркасная
Этажность
9 – 12
Паркинг
подземный
Варианты отделки
черновая
Лифт
пассажирский и грузовой
Отопление
центральное
Квартиры от других продавцов
1-комнатная
40 м²
от 575 000 ₸  / м²
от 23 000 000 ₸
2-комнатная
61 – 67.2 м²
от 540 984 ₸  / м²
от 33 000 000 ₸
Динамика цен за м² от застройщика
Отзывы
0 отзывов о ЖК Attila
0.0
Написать отзыв
Загрузка...
Описание
Жилой комплекс Attila - современный дом с престижным расположением. Левый берег, недалеко от ТРЦ Хан Шатыр, первая линия Бульвара Green Line.

Проект включает шесть блоков высотой 9 и 12 этажей, выполненных в едином современном стиле. Современный облик зданий подчеркивается качественной отделкой фасадов: на первом этаже используется эстетичный и долговечный клинкерный кирпич, а с 2 по 12 этаж — стильные фиброцементные панели. 

Увеличенные оконные проёмы обеспечивают максимум естественного света в квартирах, а все инженерные коммуникации - центральные, что гарантирует надёжность и удобство в эксплуатации. Для безопасности и удобства жителей в комплексе предусмотрена система Face ID при входе в подъезды, а также электронные замки на дверях.

Особое внимание уделено внутреннему двору - это закрытая, безопасная территория без машин, где каждая деталь продумана для комфорта жителей всех возрастов.

  • Просторные детские площадки с современными игровыми зонами
  • Оборудованные спортивные площадки для активного отдыха
  • Ландшафтное озеленение с деревьями, кустарниками и клумбами
  • Пешеходные дорожки, вымощенные качественной плиткой
  • Уютные зоны отдыха с лавочками и навесами
  • Эффектное вечернее освещение, подчёркивающее красоту архитектуры и создающее атмосферу уюта и безопасности в любое время суток

Также предусмотрен подземный паркинг, который освобождает двор от автомобилей и делает территорию по-настоящему безопасной и зелёной.

ЖК Attila

Астана, р-н Нура
Цена
Застройщик: от 560 000 ₸  / м²
Другие продавцы: от 540 983 ₸  / м²
Статус
Строится
Идут продажи от застройщика
Застройщик
Основа
Примечание
Целью публикации информации о ЖК является определение спроса на данный продукт. Однако, договоры о долевом участии в жилищном строительстве будут заключены только после того, как будет достигнуто соглашение о предоставлении гарантии от Фонда гарантирования или получено разрешение на привлечение денежных средств от местных исполнительных органов.
Квартиры от других продавцов