Продажа от застройщика
Актуально на 5 февраля 2026
1-комнатная
36,03 – 58,88 м²
от 455 000 ₸  / м²
от 16 393 650 ₸
2-комнатная
59,73 м²
от 455 000 ₸  / м²
от 27 177 150 ₸
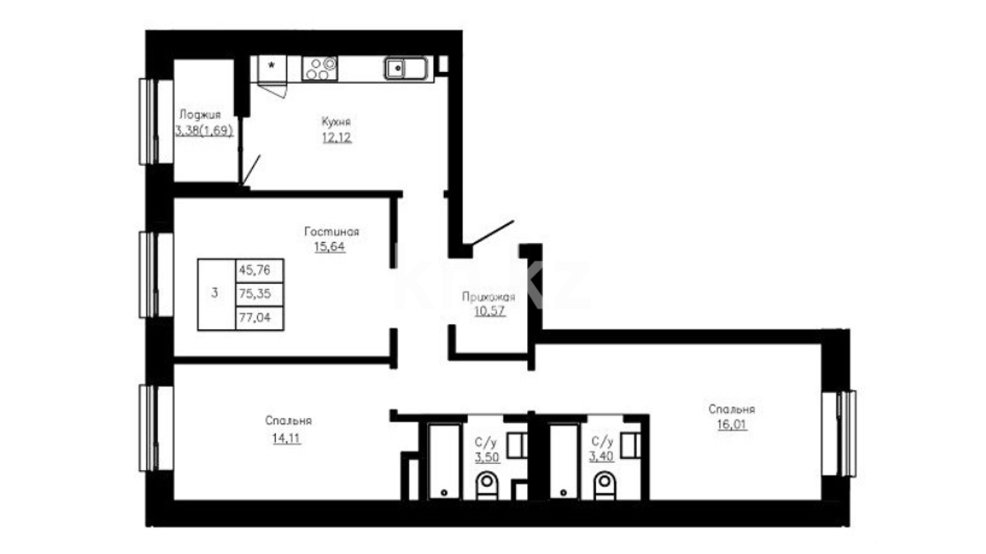
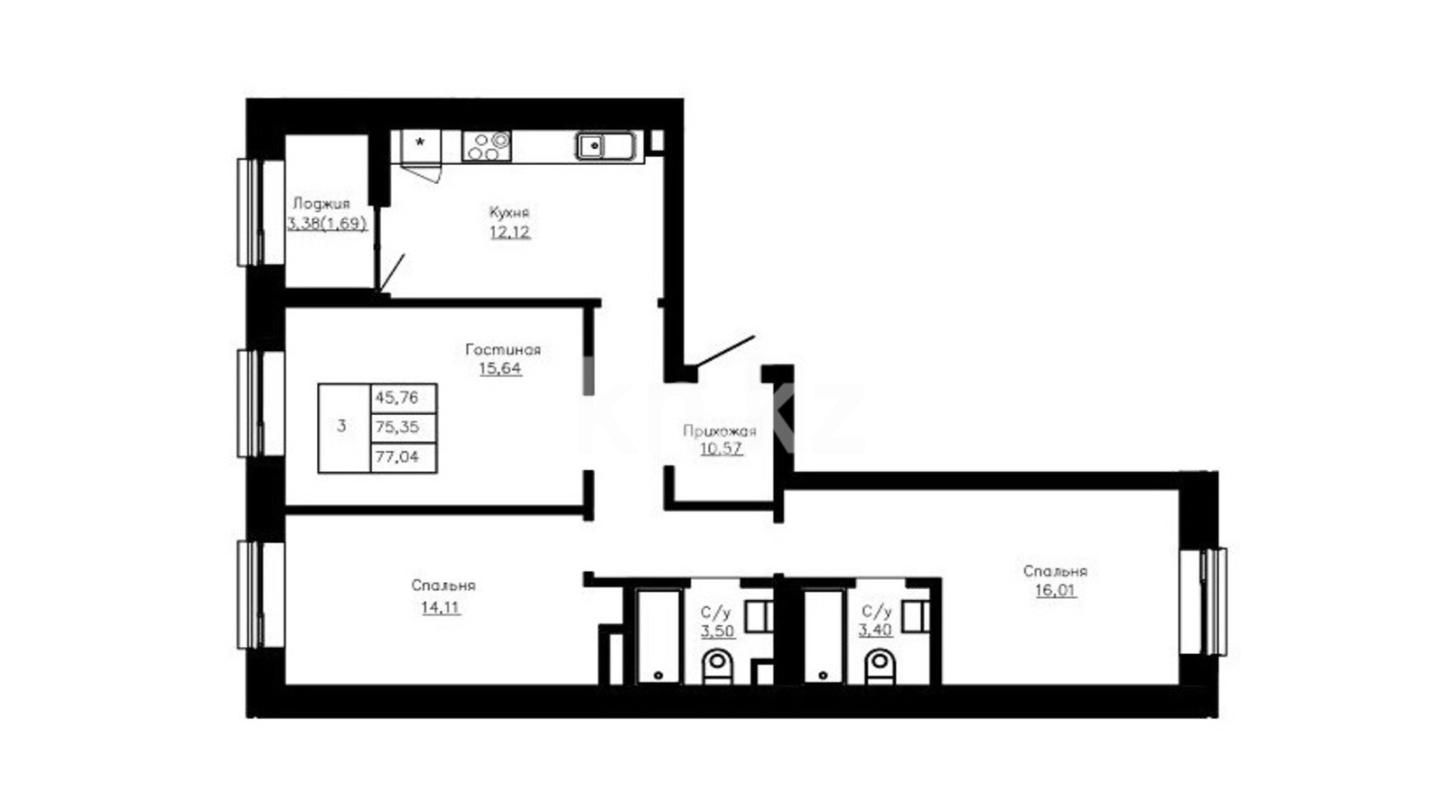
3-комнатная
77,04 – 80,3 м²
от 455 000 ₸  / м²
от 35 053 200 ₸
4-комнатная
92 м²
от 500 000 ₸  / м²
от 46 000 000 ₸
Условия продажи
Ипотека
Характеристика комплекса
Класс ЖК
комфорт
Умный дом
нет
Высота потолков
3 м
Технология строительства
кирпичная
Этажность
9
Паркинг
надземный
Варианты отделки
черновая
Лифт
пассажирский и грузовой
Отопление
центральное
Квартиры от других продавцов
1-комнатная
36 м²
от 555 556 ₸  / м²
от 20 000 000 ₸
2-комнатная
31 – 63 м²
от 601 587 ₸  / м²
от 27 500 000 ₸
3-комнатная
60 – 80 м²
от 716 163 ₸  / м²
от 54 500 000 ₸
4-комнатная
95.4 – 98 м²
от 566 038 ₸  / м²
от 54 000 000 ₸
Динамика цен за м² от застройщика
Отзывы
0 отзывов о ЖК Dauir
0.0
Написать отзыв
Загрузка...
Описание
Жилой комплекс Dauir находится на левом берегу, в престижном Есильском районе, по улице Казыбек би, вблизи ТРЦ Хан Шатыр.

В состав комплекса входит дом в девять этажей. Проект включает в себя стильную подсветку фасадов.

Секции дома формируют большой внутренний двор. В ЖК будет реализована концепция «двор без машин». Во дворе и подъездах монтируются камеры видеонаблюдения.

Благоустройство территории:

  • детские площадки с горками, качелями и безопасным покрытием;
  • зоны отдыха с экобеседками, скамейками и урнами;
  • спортивные площадки, оборудованные уличными тренажерами;
  • огороженная площадка для различных игровых видов спорта;
  • беговые и велодорожки способствуют здоровому образу жизни и активному досугу новоселов.
  • современные уличные осветительные приборы;
  • ландшафтное озеленение.

ЖК Dauir

Астана, р-н Нура
Адрес
ул. Казыбек би, 7/1
2025 г.
Цена
Застройщик: от 455 000 ₸  / м²
Другие продавцы: от 555 555 ₸  / м²
Статус
Построен
Идут продажи от застройщика
Застройщик
Favorite Group
Квартиры от других продавцов