Ход строительства
ул. Айтматова, 22
4 квартал 2026
строится
Neotech Digital School
ул. Омарова, 10
Школа-гимназия №78
ул. Нуршайыкова, 8
Quantum STEM School
ул. Е-899, 2
ТРЦ "Хан Шатыр"
пр. Туран, 37
ТРЦ "Asia Park"
пр. Кабанбай батыра, 21
ТРЦ "Green Mall"
ул. Сыганак, 17п
Продажа от застройщика
Актуально на 27 апреля 2026
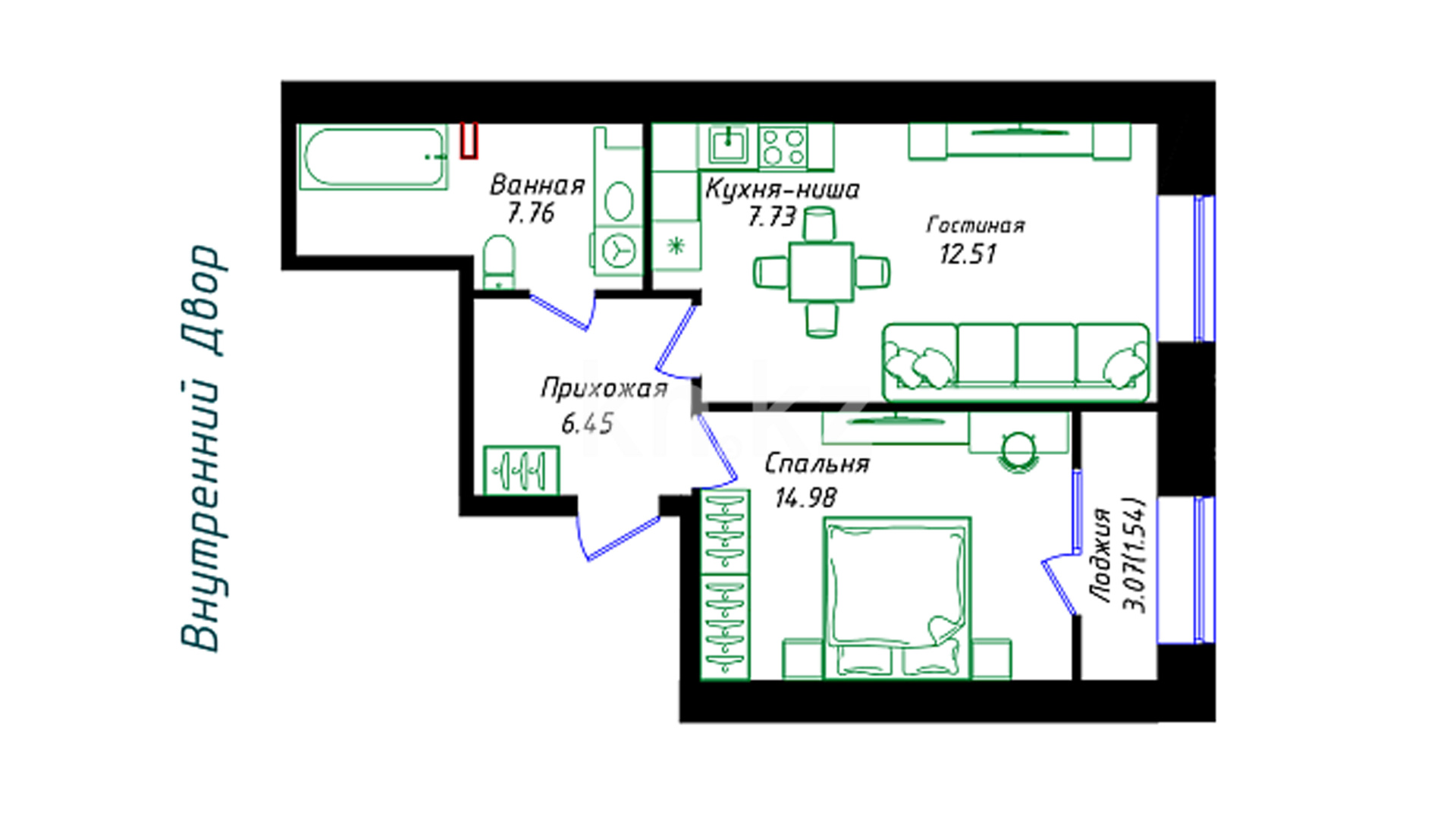
1-комнатная
37,09 – 46,13 м²
от 531 000 ₸  / м²
от 23 107 070 ₸
2-комнатная
50,97 – 72,64 м²
от 507 000 ₸  / м²
от 28 288 350 ₸
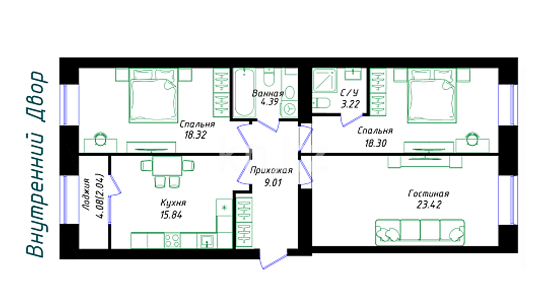
3-комнатная
81,29 – 94,54 м²
от 486 000 ₸  / м²
от 45 522 400 ₸
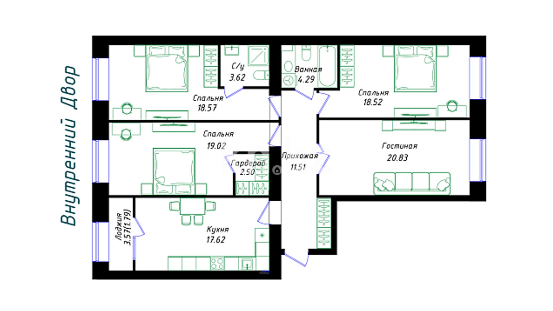
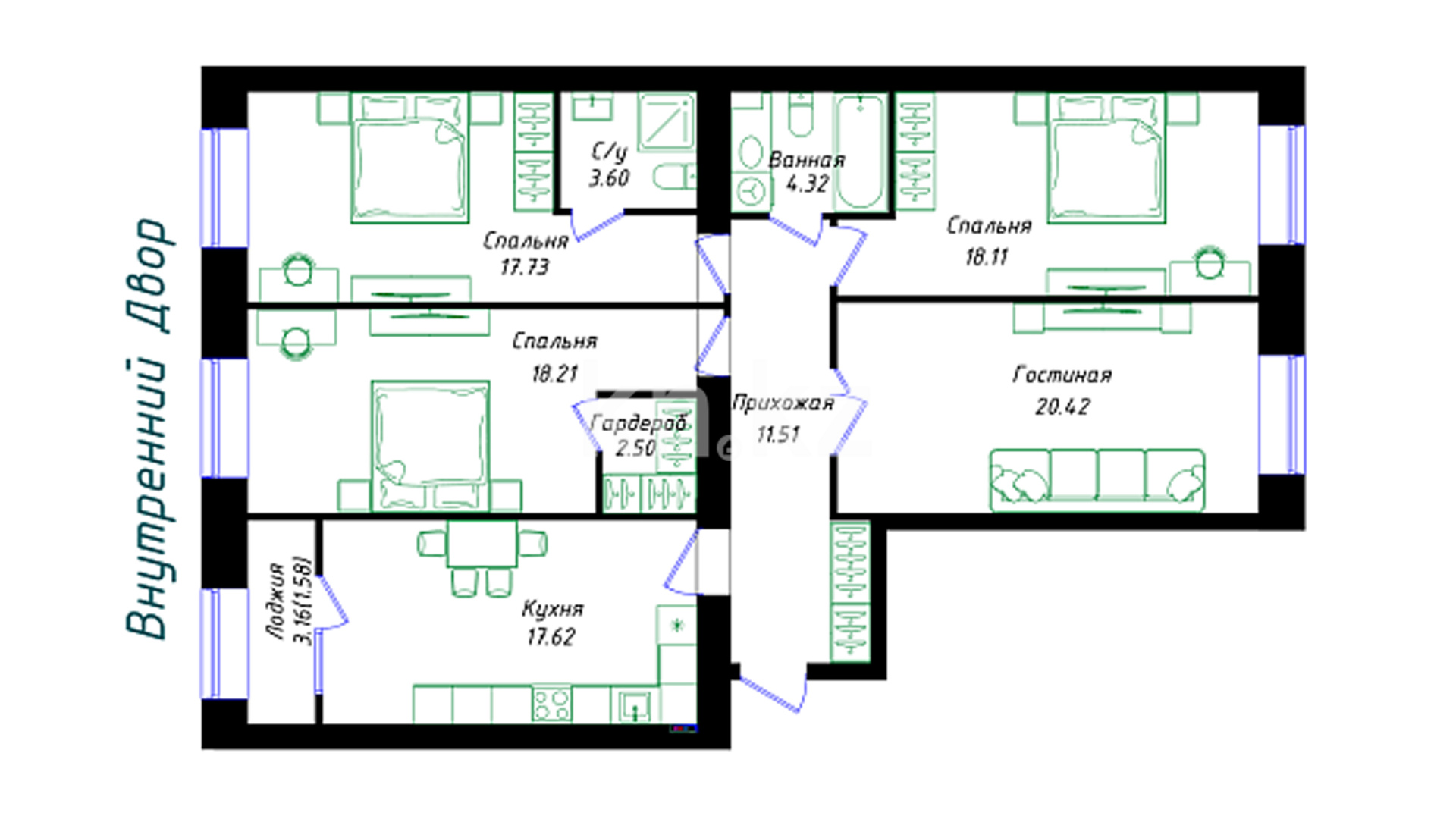
4-комнатная
115,6 – 118,27 м²
от 488 000 ₸  / м²
от 57 715 760 ₸
Условия продажи
Рассрочка
Характеристика комплекса
Класс ЖК
комфорт
Умный дом
нет
Высота потолков
3 м
Технология строительства
монолитно-каркасная
Этажность
9 – 12
Паркинг
надземный
Варианты отделки
предчистовая
Лифт
пассажирский и грузовой
Окна
обычные
Отопление
центральное
Отзывы
0 отзывов о ЖК Qadam
0.0
Написать отзыв
Загрузка...
Описание
Qadam — современный жилой комплекс в Астане, расположенный в районе Нұра, в окружении развитой инфраструктуры и с удобным доступом к основным транспортным магистралям.

Проектом предусмотрен удобный надземный паркинг, а также комфортные подъезды и просторные зоны общего пользования.

Квартиры передаются с улучшенной черновой отделкой, что позволяет будущим владельцам создать интерьер в соответствии со своим стилем и потребностями.

Qadam — это продуманное пространство для комфортной и современной городской жизни. кирпичный дом.

Закрытый двор. холл сочетает комфорт, безопасность и эстетику, создавая современную и технологичную среду. Пол выполнен из керамического кафеля с чистовой отделкой согласно дизайн-эскизам. стены и элементы интерьера оформлены в едином современном стиле, формируя уютную и презентабельную атмосферу при входе в дом.

 Надземный паркинг
 Круглосуточное видеонаблюдение
 Потолки 3 метра
 Увеличенные дверные проемы
 Увеличенные окна
 Домофон с face id

Двор, расположенный на уровне второго этажа, спроектирован как уютное и безопасное пространство для жизни. Здесь предусмотрены зоны отдыха для взрослых, современная детская площадка и спортивная зона — всё для комфорта и гармонии жителей. Территория двора закрыта и надежно защищена.

ЖК Qadam

Астана, р-н Нура
Цена
Застройщик: от 486 000 ₸  / м²
Статус
Строится
Идут продажи от застройщика
Застройщик
Svoy Dom
Примечание
Целью публикации информации о ЖК является определение спроса на данный продукт. Однако, договоры о долевом участии в жилищном строительстве будут заключены только после того, как будет достигнуто соглашение о предоставлении гарантии от Фонда гарантирования или получено разрешение на привлечение денежных средств от местных исполнительных органов.