Ход строительства
ул. Косшыгулулы, 27/1
2 квартал 2026
строится
Школа-гимназия №80
ул. Косшыгулулы, 17/2
Школа-гимназия №65
ул. Сокпакбаева, 18/4
Гимназия №67
ул. Косшыгулулы, 23/1
Ясли-сад №58 "Оркен"
ул. Сокпакбаева, 20/6
Детский сад №72 "Жанарым"
ул. Косшыгулулы, 13/3
Городская поликлиника №10
ул. Косшыгулулы, 8
Торговый центр "Euromall"
ул. Косшыгулулы, 24
Продажа от застройщика
Актуально на 3 апреля 2026
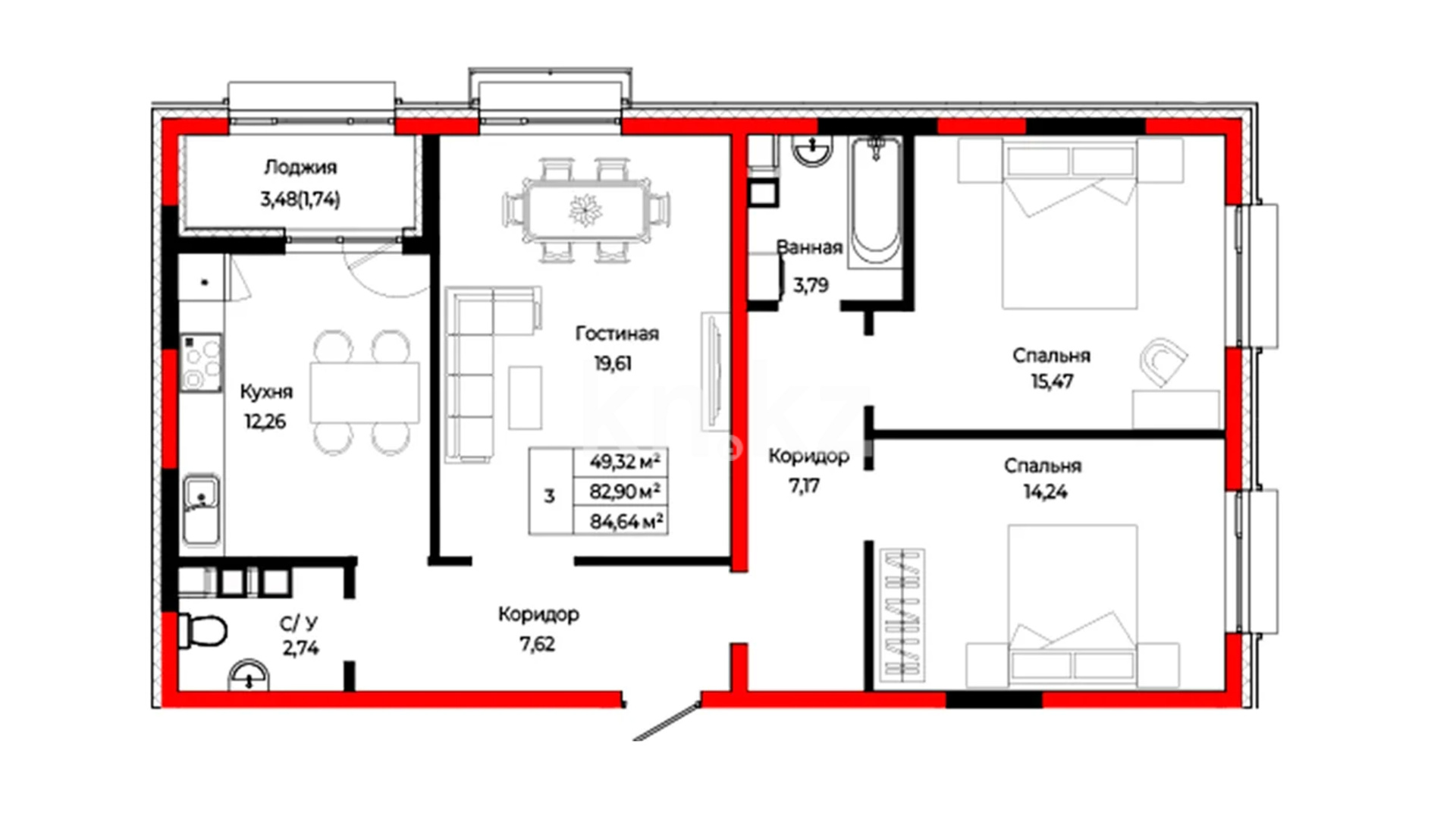
2-комнатная
58,46 – 65,98 м²
от 490 000 ₸  / м²
от 28 645 400 ₸
3-комнатная
86,48 м²
от 490 000 ₸  / м²
от 42 375 200 ₸
Условия продажи
Рассрочка
Характеристика комплекса
Класс ЖК
комфорт
Умный дом
нет
Высота потолков
3 м
Технология строительства
панельная
Этажность
9
Паркинг
надземный
Варианты отделки
черновая
Лифт
пассажирский и грузовой
Окна
обычные
Отопление
центральное
Динамика цен за м² от застройщика
Отзывы
0 отзывов о ЖК Shyraq
0.0
Написать отзыв
Загрузка...
Описание
Жилой комплекс Shyraq расположен в Астане, в районе Сарыарка на проспекте Шаймерден Косшыгулулы, что обеспечивает жильцам удобный доступ к ключевым городским объектам и при этом спокойную атмосферу. 

Комплекс состоит из девятиэтажных зданий, возведённых по монолитно-каркасной технологии с применением железобетонных панелей и двойного утепления, что гарантирует хорошую тепло- и звукоизоляцию. Высота потолков в квартирах — около 3 метров, а крупные витражные окна создают много естественного света и ощущение простора. В отделке предусмотрена черновая стадия, что даёт возможность жильцам завершить ремонт по своему вкусу, а в подъездах оформлены дизайнерские холлы. Для транспорта жителей предусмотрен крытый паркинг, а отопление осуществляется централизованно. Вход в комплекс частично организован с применением современных решений: есть возможность доступа по Face ID, что повышает безопасность и удобство.

Благоустройство территории продумано таким образом, чтобы создать комфортную и безопасную среду: двор полностью освобождён от машин, что делает его идеальным для прогулок, отдыха и игр. На территории организованы детские и спортивные площадки с безопасным покрытием, установлены уличное освещение и система круглосуточного видеонаблюдения, что усиливает ощущение защищённости. Инфраструктура микрорайона хорошо развита — рядом расположены школа на 1 200 мест, магазины, аптеки, клиники, бан­ковские отделения, студии развития и кафе, так что всё необходимое находится в шаговой доступности.

ЖК Shyraq выгодно расположен — вблизи прогулочная набережная реки Есиль, что добавляет природной атмосферы и возможностей для отдыха на свежем воздухе. Благодаря сочетанию современной архитектуры, энергоэффективных конструкций, высокого комфорта и комфортного окружения Shyraq может стать отличным выбором для семей, молодых пар и тех, кто ценит качество и спокойствие в городе.

ЖК Shyraq

Астана, р-н Сарыарка
Цена
Застройщик: от 490 000 ₸  / м²
Статус
Строится
Идут продажи от застройщика
Застройщик
NAK
Примечание
Целью публикации информации о ЖК является определение спроса на данный продукт. Однако, договоры о долевом участии в жилищном строительстве будут заключены только после того, как будет достигнуто соглашение о предоставлении гарантии от Фонда гарантирования или получено разрешение на привлечение денежных средств от местных исполнительных органов.