Ход строительства
ул. Каирбекова, 453
2023
построен
ул. Каирбекова, 453 стр
3 квартал 2025
История срока сдачи
22.10.2024
4 квартал 2024
27.12.2024
2 квартал 2025
28.07.2025
3 квартал 2025
строится
Ясли-сад №6
ул. Текстильщиков, 4/2
Детский сад "Ак Желкен"
пр. Кобланды Батыра, 56
Ясли-сад №18
ул. Каирбекова, 399/2
Детский сад "Академия радости"
пр. Кобланды Батыра, 49/2
Детский сад "Mary Poppins"
ул. 2-я Костанайская, 24
Поликлиника №3
пр. Кобланды Батыра, 21
Квартиры и помещения ЖК Семья от застройщика
Цены и наличие актуальны от 26 сентября 2025
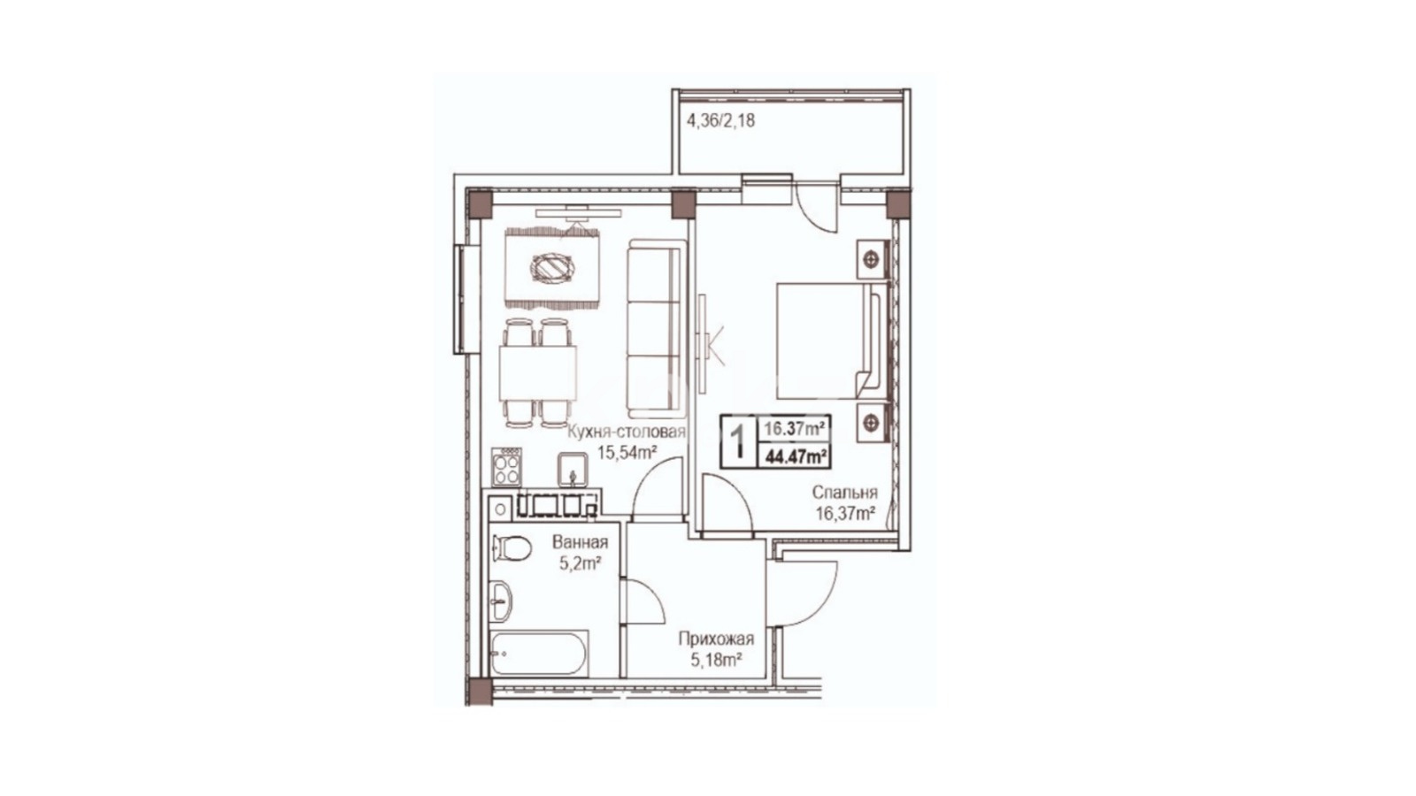
1-комнатная
44,47 – 49,76 м²
от 340 000 ₸  / м²
от 15 119 800 ₸
2-комнатная
71,3 – 78,75 м²
от 330 000 ₸  / м²
от 23 529 000 ₸
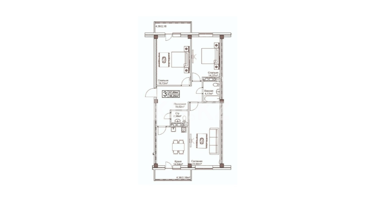
3-комнатная
90,71 – 101,78 м²
от 300 000 ₸  / м²
от 27 213 000 ₸
Характеристика комплекса
Класс ЖК
комфорт
Умный дом
нет
Высота потолков
2.7 м
Технология строительства
кирпичная
Этажность
4
Паркинг
надземный
Варианты отделки
предчистовая
Лифт
нет
Отопление
центральное
Динамика цен за м² от застройщика
О застройщике

ТОО "Bolashak Construction Company KZ" - компания-застройщик в г. Костанай.

1
год
на рынке
0
объектов
сданы
1
дом строится
в 1 ЖК
Отзывы
0 отзывов о ЖК Семья
0.0
Написать отзыв
Загрузка...
Описание
Малоэтажный жилой комплекс Семья расположен в одном из самых спокойных районов Костаная, с развитой инфраструктурой.

Комплекс состоит из трех домов. Наружные стены из кирпича и утеплитель из тепло-блока. Оригинальные подъезды в современном стиле, с уникальными перилами и широким лестничным маршем - 1,5 м.

В комплексе представлены 1-, 2- и 3-комнатные квартиры площадью от 41 до 90 кв. метров. Большие окна - 1,8 м.

Закрытый для машин и посторонних внутренний двор. Безопасность жильцов обеспечивает круглосуточная охрана, шлагбаумы на въезде/выезде и современные камеры видеонаблюдения – 27 штук.

  • Детская площадка
  • Футбольное поле
  • Маленькая аллея и зона отдыха

Парковочные места - 150 мест, находятся за территорией домов, и по периметру ограждения.

ЖК Семья

Костанай
Адрес
ул. Каирбекова, 453
2023 г.
Цена
Застройщик: от 300 000 ₸  / м²
Начало строительства
2 квартал 2021
Статус
Строится
Идут продажи от застройщика
Застройщик
Bolashak Construction Company KZ
Примечание
Целью публикации информации о ЖК является определение спроса на данный продукт. Однако, договоры о долевом участии в жилищном строительстве будут заключены только после того, как будет достигнуто соглашение о предоставлении гарантии от Фонда гарантирования или получено разрешение на привлечение денежных средств от местных исполнительных органов.