Частный сад "Вундеркинд"
ул. Маншук Маметовой, 26
Ясли-сад №7 "Айналайын"
ул. Тайманова, 210/1
Квартиры и помещения ЖК Alima от застройщика
Цены и наличие актуальны от 26 сентября 2025
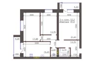
2-комнатная
73,96 – 95,32 м²
от 280 000 ₸  / м²
от 20 708 800 ₸
3-комнатная
97,5 – 112,34 м²
от 280 000 ₸  / м²
от 27 300 000 ₸
Характеристика комплекса
Класс ЖК
комфорт
Умный дом
нет
Высота потолков
3 м
Технология строительства
кирпичная
Этажность
5
Паркинг
надземный
Варианты отделки
черновая
Лифт
нет
Отопление
центральное
Квартиры от других продавцов
3-комнатная
140 м²
от 514 286 ₸  / м²
от 72 000 000 ₸
Отзывы
0 отзывов о ЖК Alima
0.0
Написать отзыв
Загрузка...
Описание
Жилой комплекс «Alima» расположен в центральной части Уральска, по улице Хиуаз Доспановой, всего в 600 метрах от живописного парка имени Кирова и недалеко от набережной реки Чаган. Это идеальное место для тех, кто ценит близость к природе и развитую городскую инфраструктуру.

Архитектурная концепция ЖК выполнена в современном европейском стиле. Пятиэтажный дом состоит из трех секций и возведен по классической кирпичной технологии с использованием высококачественных материалов. Наружные стены утеплены экологически безопасным теплоизолятором и облицованы долговечным декоративным кирпичом, который сохраняет презентабельный внешний вид здания на долгие годы. Фасад оформлен в сдержанной цветовой гамме, а стильная ночная подсветка подчеркивает архитектурные детали. Практичные корзины для кондиционеров гармонично вписываются в общий облик здания.

Внутренние пространства жилого комплекса также спроектированы с учетом потребностей жителей. Холлы и места общего пользования оформлены в современном стиле с использованием качественных материалов. Входные группы адаптированы для граждан с ограниченными физическими возможностями, а двери с утеплением и остеклением оснащены домофонной системой для дополнительной безопасности.

Благоустроенная территория

Комплекс расположен на закрытой благоустроенной территории, где круглосуточно работает система видеонаблюдения. Для удобства жителей предусмотрены наземные парковочные места, дорожки из тротуарной плитки и удобные проезды для автомобилей и спецтранспорта.

Во дворе оборудована детская площадка с безопасным покрытием и многофункциональной игровой зоной для малышей разного возраста. Уютные зоны отдыха с удобными скамейками утопают в зелени декоративных деревьев и цветников. Ландшафтное озеленение двора, а также современное освещение создают приятную атмосферу для вечернего отдыха и прогулок.

ЖК Alima

Уральск
Адрес
ул. Доспановой, 32
2023 г.
Цена
Застройщик: от 280 000 ₸  / м²
Другие продавцы: от 514 285 ₸  / м²
Статус
Построен
Идут продажи от застройщика
Застройщик
Kyran Stroy
Квартиры от других продавцов