Продажа 3-комнатной квартиры, 55 м², мкр-н 7, дом 43

8 000 000 ₸ / 145 455 ₸ за м²
г. Темиртау на карте
Улица
мкр-н 7, 43
Количество комнат
3
Этаж
9 из 9
Площадь
55 м², кухня – 5.7 м²
Год постройки
1973
Тип дома
блочный
Площадь кухни
5.7
Состояние
косметический ремонт
Санузел
раздельный
Балкон
есть
Расположение
угловая
В залоге
Нет
3-х комнатная квартира в центре города.

Расположена по пр. Металлургов, в районе "Корзины".
Отличная локация!
В микрорайоне имеется 3 детских сада, 2 школы с русским и казахским языками обучения.
Также возле дома расположены торговые дома, магазины, аптеки, фитнес залы, салоны красоты, рестораны и прочие объекты, необходимые для комфортного проживания.
Возле дома имеются автобусные остановки, с маршрутами в любом направлении.

Квартира расположена на 9/9 этаже.
В скором времени будет установлен новый лифт.
Подписи жильцов на установку лифта уже собраны, заявка подана!
Крыша в порядке!

Дом блочный, 1973 года постройки. Подходит для приобретения в ипотеку в любом банке!
Зимой очень тепло, т.к. подача теплоносителя осуществляется через 9й этаж.
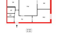
Планировка смежно-раздельная.
Общая площадь составляет 55 кв.м.
Раздельный санузел, кладовая.
Большой пластиковый балкон на 2 комнаты.
Мебель что есть на фото, при необходимости останется новым собственникам.
Также покупателям можем оставить холодильник и стиральную машину.

Квартира без залогов, долгов и обременений.
Возможно переоформление и переезд в любой момент.

Окажем помощь в оформлении ипотеки без первоначального взноса и подтверждения дохода!
Опубликовано: 18.03.2025
Номер объявления: 3453118

Риэлтор агентства недвижимости ЦАН

Риэлтор агентства недвижимости
Мади Садубаев
Закажите обратный звонок
+7 701 Показать телефон

Пожаловаться на объявление
Продажа 3-комнатной квартиры, 55 м², мкр-н 7, дом  43 в Темиртау
Продажа 3-комнатной квартиры, 55 м², мкр-н 7, дом  43 в Темиртау - фото 2
Продажа 3-комнатной квартиры, 55 м², мкр-н 7, дом  43 в Темиртау - фото 3
Продажа 3-комнатной квартиры, 55 м², мкр-н 7, дом  43 в Темиртау - фото 4
Продажа 3-комнатной квартиры, 55 м², мкр-н 7, дом  43 в Темиртау - фото 5
Продажа 3-комнатной квартиры, 55 м², мкр-н 7, дом  43 в Темиртау - фото 6
Продажа 3-комнатной квартиры, 55 м², мкр-н 7, дом  43 в Темиртау - фото 7
Продажа 3-комнатной квартиры, 55 м², мкр-н 7, дом  43 в Темиртау - фото 8
Продажа 3-комнатной квартиры, 55 м², мкр-н 7, дом  43 в Темиртау - фото 9
Продажа 3-комнатной квартиры, 55 м², мкр-н 7, дом  43 в Темиртау - фото 10