Продажа , 659 м², Комарова, дом 3 - ул. Ходжанова

950 000 000 ₸ / 1 441 578 ₸ за м²
г. Алматы, Бостандыкский р-н на карте
Улица
Комарова, 3
На пересечении с улицей
ул. Ходжанова
Площадь
659 м²
Что именно
Здание
Состояние
черновая отделка
В залоге
Нет
🔹 1. Свет и окна
— На каждом этаже большое количество полноценных окон
— Особенно на 2-м этаже: панорамные окна в холле 185 м²
— Это делает здание идеальным под офис, салон, студию, частную клинику или шоурум
— Даже в подвале — техническое проветривание предусмотрено

🔹 2. Высота потолков:
Цоколь — 3,3 м
1 и 2 этажи — по 3,5 м
Техэтаж — частично эксплуатируемый, в зависимости от точки — до 3,0 м
Потолки высокие, воздушные, дают ощущение простора.

🔹 3. Инженерная начинка:
Дом новый, все инженерные сети свежие
Тепло- и шумоизоляция по ГОСТ
Использованы современные материалы: газоблоки, минвата, изоспан, железобетон
Утеплённый фасад, вентилируемая кровля
Продуманная вентиляция (включая подвал и техпомещения)

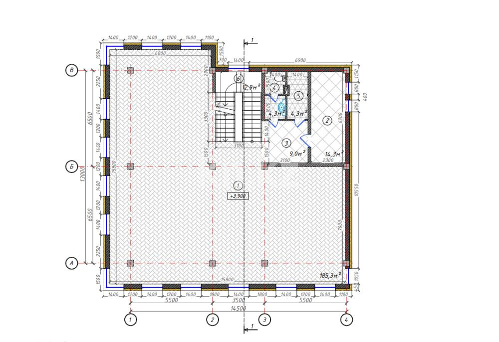
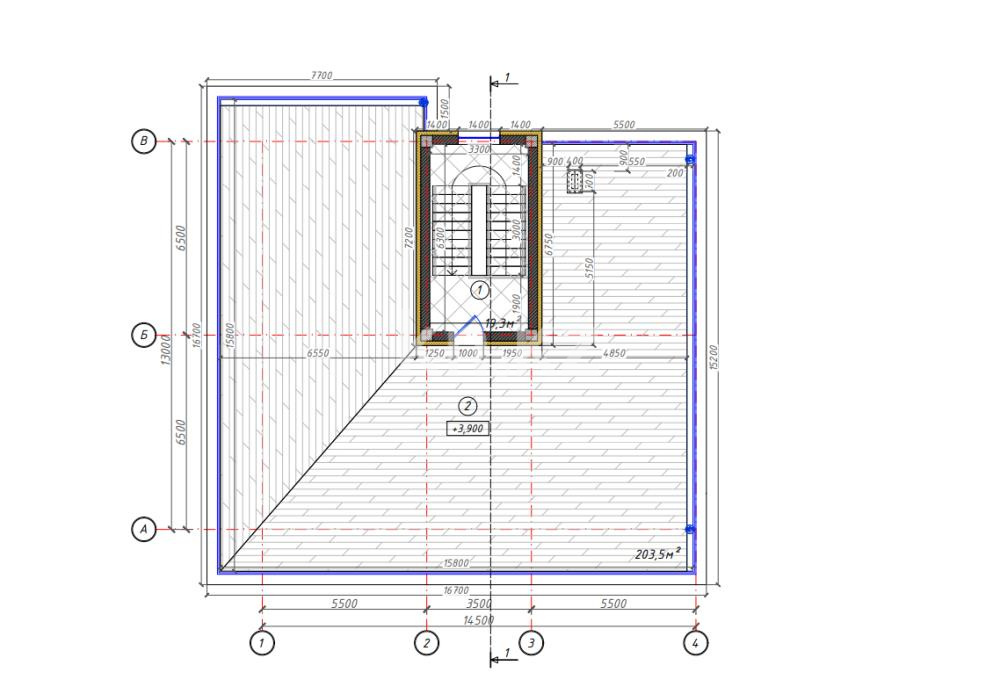
📐 Общая площадь помещений:
Цокольный этаж:
🔹 Служебное помещение — 125,7 м²
🔹 Лестничная клетка — 19,2 м²
🔹 Кладовая — 16,2 м²
🔹 Техническое помещение — 10,9 м²
🔹 Тамбур — 4,6 м²
➡️ Итого: 176,6 м² (по фактической планировке цоколя)

1 этаж:
🔹 Зал, кухня, санузлы, прачечная, кладовая и др. — 172,1 м²

2 этаж:
🔹 Холл, гардероб, санузлы — 230,1 м²

Техэтаж (кровля):
🔹 Лестничная клетка + эксплуатируемая кровля — 80,4 м² (учитывается с коэф. 0,3)
Опубликовано: 06.10.2025
Номер объявления: 3565163

Агентство недвижимости DARS CAPITAL

Агентство недвижимости DARS CAPITAL
Закажите обратный звонок
+7 705 Показать телефон

Пожаловаться на объявление
Продажа , 659 м², Комарова, дом  3 - ул. Ходжанова в Алматы
Продажа , 659 м², Комарова, дом  3 - ул. Ходжанова в Алматы - фото 2
Продажа , 659 м², Комарова, дом  3 - ул. Ходжанова в Алматы - фото 3
Продажа , 659 м², Комарова, дом  3 - ул. Ходжанова в Алматы - фото 4
Продажа , 659 м², Комарова, дом  3 - ул. Ходжанова в Алматы - фото 5
Продажа , 659 м², Комарова, дом  3 - ул. Ходжанова в Алматы - фото 6
Продажа , 659 м², Комарова, дом  3 - ул. Ходжанова в Алматы - фото 7
Продажа , 659 м², Комарова, дом  3 - ул. Ходжанова в Алматы - фото 8
Продажа , 659 м², Комарова, дом  3 - ул. Ходжанова в Алматы - фото 9
Продажа , 659 м², Комарова, дом  3 - ул. Ходжанова в Алматы - фото 10
Продажа , 659 м², Комарова, дом  3 - ул. Ходжанова в Алматы - фото 11
Продажа , 659 м², Комарова, дом  3 - ул. Ходжанова в Алматы - фото 12