Продажа 2-комнатной квартиры, 43 м², ул. Алиханова, дом 30/2

17 000 000 ₸ / 395 349 ₸ за м²
г. Караганда, Город на карте
Улица
ул. Алиханова, 30/2
Количество комнат
2
Этаж
2 из 5
Площадь
43 м², кухня – 5 м²
Год постройки
1964
Материал стен
панельный
Площадь кухни
5
В залоге
Нет
Светлая и теплая двухкомнатная квартира в районе Вечного огня ждёт своих покупателей
Улица Алиханова 30/2
Находится в квадрате улиц: Лободы- Ерубаева- Гоголя- Абдирова

Архитектура:
-Материал стен: панель
-Год постройки: 1964 год
-Этажность: 5 этажей
-Квартира расположена на 2-м этаже

Характеристики:
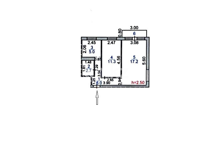
-Общая площадь 42.9м²
-Гостиная 17.2м² с выходом на балкон
-Жилая комната 11.3м²
-Кухня 5м²
-Сан. узел совмещенный 2.7м²
-Прихожая 6м²
-Высота потолка 2.5м

Преимущества:
-Раздельная планировка, все комнаты изолированы
-Пластиковые окна, сложное открывание
-Полы ламинат
-Стены обои
-Потолок гипсокартон
-Все коммуникации заменены, установлены счетчики
-Биметаллические радиаторы отопления
-Качественная металлическая входная дверь
-Встроенный кухонный гарнитур с необходимой мебелью и техникой
-Отличный напор воды
-Центральный газ
-Санузел отделка кафель, душевая кабинка
-Балкон остеклен пластиком
-Квартира угловая, но стены не промерзают, межпанельные швы хорошо заделаны
-Домофон
-Дом обсуживает КСК
-Уличное освещение
-Дом теплый, сухой
-Чистый и аккуратный подъезд, пластиковые окна
-Камеры круглосуточного видеонаблюдения ЦОУ
-Квартира без долгов и обременений, готова к продаже
-Подходит под ипотеку

Внешнее окружение:
-Отличная локация, все находится в пешей доступности
-Ясли-сад Аяла, Думан
-Гимназии №93 и №38, школа Плавания, дворец школьников (ДДЮ)
-Бегопарк Бегемот
-Сквер для прогулок за мемориалом Вечный Огонь
-Супермаркет Юма, магазины у дома, аптека и т.д.

Транспорт:
-Остановка Боулинг Арман находится в 6-ти минутах ходьбы от дома
-Курсируют автобусы № 7, 49, 53, 65, 500А; а также маршрутки:№ 29, 30

Рассматриваю покупателей:
-за наличный расчёт
-ипотека, полное сопровождение и помощь в оформлении
-использование пенсионных отчислений (ЕНПФ)

По всем вопросам, пожалуйста, с 09:00 до 21:00. Если не ответили, мы вам обязательно перезвоним
Просмотр квартиры только по предварительной договоренности
Опубликовано: 14.10.2025
Номер объявления: 3569092

Риэлтор агентства недвижимости АН Сергея Фетисова

Риэлтор агентства недвижимости
Ольга Мекк
Закажите обратный звонок
+7 705 Показать телефон

Пожаловаться на объявление
Продажа 2-комнатной квартиры, 43 м², ул. Алиханова, дом  30/2 в Караганде
Продажа 2-комнатной квартиры, 43 м², ул. Алиханова, дом  30/2 в Караганде - фото 2
Продажа 2-комнатной квартиры, 43 м², ул. Алиханова, дом  30/2 в Караганде - фото 3
Продажа 2-комнатной квартиры, 43 м², ул. Алиханова, дом  30/2 в Караганде - фото 4
Продажа 2-комнатной квартиры, 43 м², ул. Алиханова, дом  30/2 в Караганде - фото 5
Продажа 2-комнатной квартиры, 43 м², ул. Алиханова, дом  30/2 в Караганде - фото 6
Продажа 2-комнатной квартиры, 43 м², ул. Алиханова, дом  30/2 в Караганде - фото 7
Продажа 2-комнатной квартиры, 43 м², ул. Алиханова, дом  30/2 в Караганде - фото 8
Продажа 2-комнатной квартиры, 43 м², ул. Алиханова, дом  30/2 в Караганде - фото 9
Продажа 2-комнатной квартиры, 43 м², ул. Алиханова, дом  30/2 в Караганде - фото 10
Продажа 2-комнатной квартиры, 43 м², ул. Алиханова, дом  30/2 в Караганде - фото 11
Продажа 2-комнатной квартиры, 43 м², ул. Алиханова, дом  30/2 в Караганде - фото 12
Продажа 2-комнатной квартиры, 43 м², ул. Алиханова, дом  30/2 в Караганде - фото 13
Продажа 2-комнатной квартиры, 43 м², ул. Алиханова, дом  30/2 в Караганде - фото 14
Продажа 2-комнатной квартиры, 43 м², ул. Алиханова, дом  30/2 в Караганде - фото 15
Продажа 2-комнатной квартиры, 43 м², ул. Алиханова, дом  30/2 в Караганде - фото 16
Продажа 2-комнатной квартиры, 43 м², ул. Алиханова, дом  30/2 в Караганде - фото 17
Продажа 2-комнатной квартиры, 43 м², ул. Алиханова, дом  30/2 в Караганде - фото 18
Продажа 2-комнатной квартиры, 43 м², ул. Алиханова, дом  30/2 в Караганде - фото 19
Продажа 2-комнатной квартиры, 43 м², ул. Алиханова, дом  30/2 в Караганде - фото 20
Продажа 2-комнатной квартиры, 43 м², ул. Алиханова, дом  30/2 в Караганде - фото 21
Продажа 2-комнатной квартиры, 43 м², ул. Алиханова, дом  30/2 в Караганде - фото 22