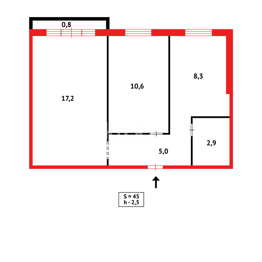
Продажа 2-комнатной квартиры, 44 м², мкр-н 6-й, дом 26

9 700 000 ₸ / 220 455 ₸ за м²
г. Темиртау на карте
Улица
мкр-н 6-й, 26
Количество комнат
2
Этаж
2 из 5
Площадь
44 м², кухня – 8 м²
Год постройки
1970
Материал стен
панельный
Площадь кухни
8
В залоге
Нет
Продам 2 комнатную квартиру на 6 микрорайоне , рядом с рынком. Квартира на 2 этаже в 5 этажном доме 1970 года постройки. Не угловая, зимой тепло, летом прохладно. Произведен качественный ремонт, установлены новые окна, входная и межкомнатные двери, новая сантехника и счетчики учета воды. Остеклен и обшит пластиком балкон. В квартире сделана и узаконена перепланировка, кухня стала больше 9 кв.м а туалет с ванной совместно. Остается частично мебель .Можно заехать и жить без грандиозных финансовых затрат. Рядом находятся Общеобразовательная школа №10, Средняя общеобразовательная школа №6, Детский сад №6 "Уяша", Центральная мечеть, Частный детский сад "Играй, малыш", Детский противотуберкулезный санаторий "Денсаулык", Ясли-сад "Сәуле", Центральный рынок, ТД Байтерек, Частный детский сад "Непоседы". Юридическое сопровождение сделки на всех этапах. Помощь в оформлении ипотеки.
Опубликовано: 01.11.2025
Номер объявления: 3577028

Риэлтор агентства недвижимости ЦАН

Риэлтор агентства недвижимости
Андрей Янкович
Закажите обратный звонок
+7 771 Показать телефон

Пожаловаться на объявление
Продажа 2-комнатной квартиры, 44 м², мкр-н 6-й, дом  26 в Темиртау
Продажа 2-комнатной квартиры, 44 м², мкр-н 6-й, дом  26 в Темиртау - фото 2
Продажа 2-комнатной квартиры, 44 м², мкр-н 6-й, дом  26 в Темиртау - фото 3
Продажа 2-комнатной квартиры, 44 м², мкр-н 6-й, дом  26 в Темиртау - фото 4
Продажа 2-комнатной квартиры, 44 м², мкр-н 6-й, дом  26 в Темиртау - фото 5
Продажа 2-комнатной квартиры, 44 м², мкр-н 6-й, дом  26 в Темиртау - фото 6
Продажа 2-комнатной квартиры, 44 м², мкр-н 6-й, дом  26 в Темиртау - фото 7
Продажа 2-комнатной квартиры, 44 м², мкр-н 6-й, дом  26 в Темиртау - фото 8
Продажа 2-комнатной квартиры, 44 м², мкр-н 6-й, дом  26 в Темиртау - фото 9
Продажа 2-комнатной квартиры, 44 м², мкр-н 6-й, дом  26 в Темиртау - фото 10