Продажа , 473.9 м², ул. Жарокова, дом 366

870 381 563 ₸ / 1 836 636 ₸ за м²
г. Алматы, Бостандыкский р-н на карте
Улица
ул. Жарокова, 366
Площадь
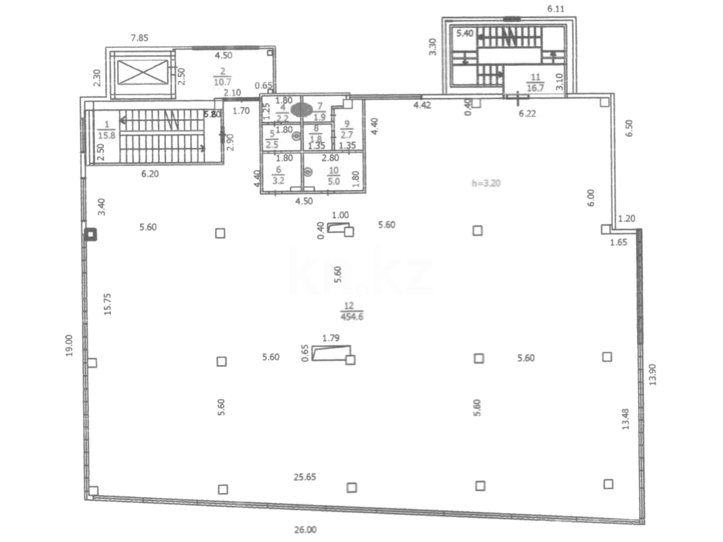
473.9 м²
Что именно
Офис
Состояние
ремонт
Находится
в бизнес-центре
Название бизнес-центра
Жарокова 366
В залоге
Нет
Продажа офиса в административном здании на ул. Жарокова, 366.

Панорамный офис с современным ремонтом. Просторный офис занимает 6 этаж целиком.
В пешей доступности расположены кафе и магазины.
Хорошая транспортная доступность - 2 минуты пешком до ближайшей автобусной остановки.

Ключевые параметры:
Площадь: 473.9 м²
Цена: 1 836 635 тенге за 1м²

Без комиссии и переплат. Подписание договора напрямую с собственником.

Свяжитесь с нами по телефону — организуем показ в удобное для вас время, ответим на все дополнительные вопросы.
Опубликовано: 14.11.2025
Номер объявления: 3583062

Агентство недвижимости Bright Rich | CORFAC International

Агентство недвижимости Bright Rich | CORFAC International
Закажите обратный звонок
+7 771 Показать телефон

Пожаловаться на объявление
Продажа , 473.9 м², ул. Жарокова, дом  366 в Алматы
Продажа , 473.9 м², ул. Жарокова, дом  366 в Алматы - фото 2
Продажа , 473.9 м², ул. Жарокова, дом  366 в Алматы - фото 3
Продажа , 473.9 м², ул. Жарокова, дом  366 в Алматы - фото 4
Продажа , 473.9 м², ул. Жарокова, дом  366 в Алматы - фото 5
Продажа , 473.9 м², ул. Жарокова, дом  366 в Алматы - фото 6
Продажа , 473.9 м², ул. Жарокова, дом  366 в Алматы - фото 7
Продажа , 473.9 м², ул. Жарокова, дом  366 в Алматы - фото 8
Продажа , 473.9 м², ул. Жарокова, дом  366 в Алматы - фото 9