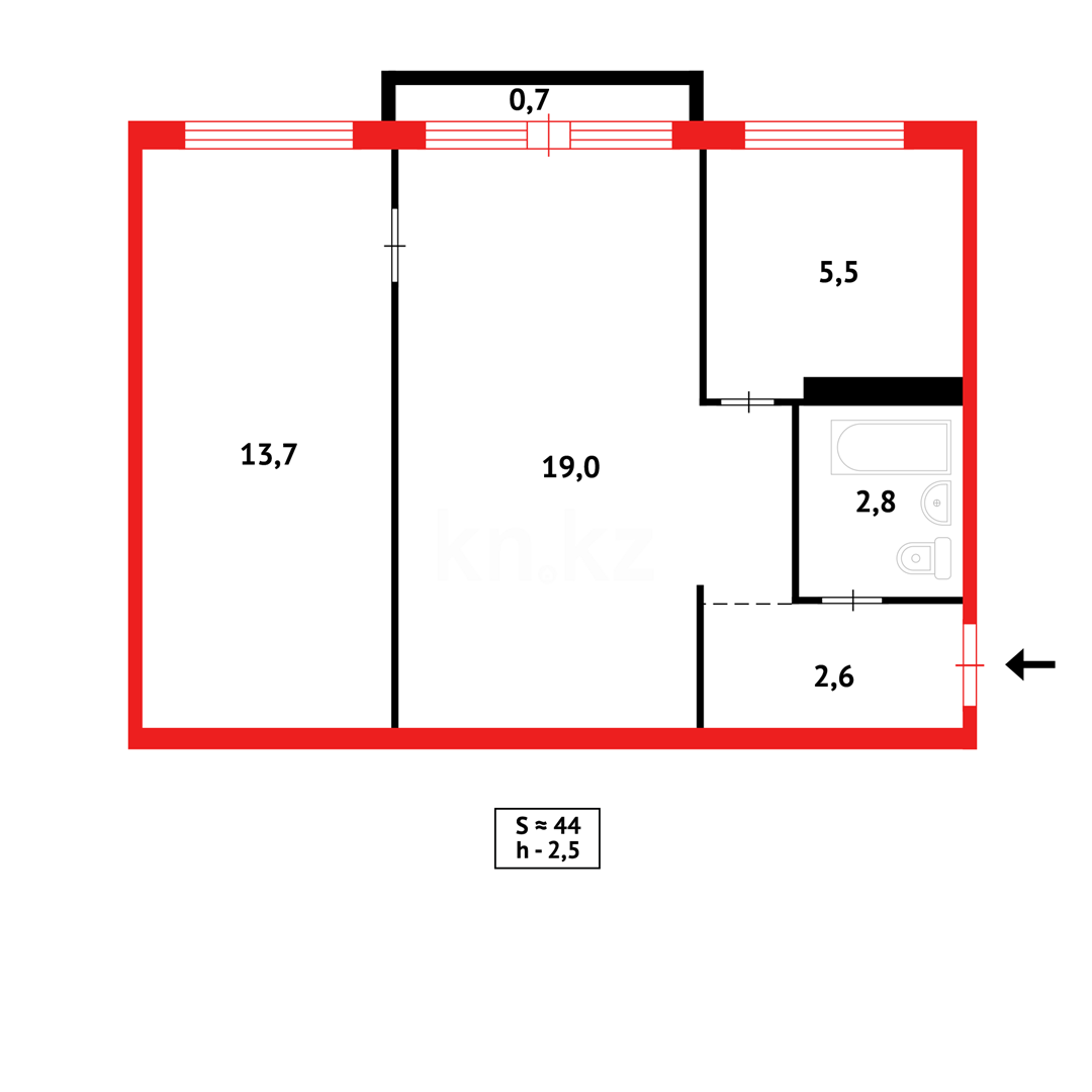
Продажа 2-комнатной квартиры, 45 м², ул. Ержанова

16 500 000 ₸ / 366 667 ₸ за м²
г. Караганда, Город
Улица
ул. Ержанова
Количество комнат
2
Этаж
3 из 5
Площадь
45 м², кухня – 6 м²
Год постройки
1965
Тип дома
панельный
Площадь кухни
6
Состояние
косметический ремонт
Санузел
совместный
Балкон
есть
Расположение
неугловая
В залоге
Нет
Продаем уютную 2-комнатную квартиру по ул. Ержанова, рядом с магазином «Огонек». Квартира расположена на комфортном 3 этаже пятиэтажного дома.
После капитального ремонта: полностью перестелены полы, заменена электрическая проводка, обновлена сантехника и радиаторы отопления, установлен натяжной потолок. Квартира чистая, аккуратная и очень светлая — можно заезжать и жить без дополнительных вложений.
Частично остается мебель и техника — приятный бонус для новых владельцев.
Локация удобная и востребованная: рядом магазины, остановки, школы и вся необходимая инфраструктура.

Отличный вариант как для себя, так и под сдачу!
Опубликовано: 26.11.2025
Номер объявления: 3588005

Риэлтор агентства недвижимости ЦАН

Риэлтор агентства недвижимости
Татьяна Хигай
Закажите обратный звонок
+7 702 Показать телефон

Пожаловаться на объявление
Продажа 2-комнатной квартиры, 45 м², ул. Ержанова в Караганде
Продажа 2-комнатной квартиры, 45 м², ул. Ержанова в Караганде - фото 2
Продажа 2-комнатной квартиры, 45 м², ул. Ержанова в Караганде - фото 3
Продажа 2-комнатной квартиры, 45 м², ул. Ержанова в Караганде - фото 4
Продажа 2-комнатной квартиры, 45 м², ул. Ержанова в Караганде - фото 5
Продажа 2-комнатной квартиры, 45 м², ул. Ержанова в Караганде - фото 6
Продажа 2-комнатной квартиры, 45 м², ул. Ержанова в Караганде - фото 7
Продажа 2-комнатной квартиры, 45 м², ул. Ержанова в Караганде - фото 8