Продажа 1-комнатной квартиры, 32 м², ул. Ермекова

12 500 000 ₸ / 390 625 ₸ за м²
г. Караганда, Город
Улица
ул. Ермекова
Количество комнат
1
Этаж
5 из 5
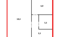
Площадь
32 м², кухня – 5.5 м²
Год постройки
1978
Тип дома
кирпичный
Площадь кухни
5.5
Состояние
косметический ремонт
Санузел
совместный
Балкон
есть
Расположение
неугловая
В залоге
Да
Квартира теплая, светлая, уютная, ухоженная с балконом. Квартира с косметическим ремонтом.
В квартире деревянные полы, сантехника в хорошем состоянии. Радиаторы отопления - чугунные. Дом газифицирован. Все счетчики. В этом году была поменяна крыша. Имеется вместительный балкон застекленный с панорамным видом на зеленый сквер.
У дома отличный фасад, подвальное помещение чистое и сухое, бойлерная после ремонта. Подъезд чистый, ухоженный. Входная зона в подъезд со двора.
Окружающий район обладает развитой инфраструктурой и удобной транспортной развязкой. Рядом расположены Ботанический сад, Детский сад "Байтерек", Средняя школа №10, Ясли-сад №114 "Бахыт".
Во дворе дома проведен капитальный ремонт, выложен новый асфальт, установлены скамьи для отдыха, освещение, детская игровая площадка, большое количество зеленых насаждений. Полный пакет документов подготовлен к продаже.
Данная квартира обладает высоким инвестиционным потенциалом как один из наиболее востребованных видов жилья. Всегда найдутся и покупатели, и арендаторы. 1 комнатная квартира - это оптимальный выбор в качестве первого собственного жилья для молодоженов, небольшой семьи или студентов. Звоните!
1) профессиональное юридическое сопровождение сделки;
2) подготовка полного пакета документов.
3) помощь в оформлении ИПОТЕКИ. Подбор выгодных ипотечных программ - БЕСПЛАТНАЯ консультация.
Опубликовано: 30.11.2025
Номер объявления: 3589501

Риэлтор агентства недвижимости ЦАН

Риэлтор агентства недвижимости
Михайлова Валерия
Закажите обратный звонок
+7 778 Показать телефон

Пожаловаться на объявление
Продажа 1-комнатной квартиры, 32 м², ул. Ермекова в Караганде
Продажа 1-комнатной квартиры, 32 м², ул. Ермекова в Караганде - фото 2
Продажа 1-комнатной квартиры, 32 м², ул. Ермекова в Караганде - фото 3
Продажа 1-комнатной квартиры, 32 м², ул. Ермекова в Караганде - фото 4
Продажа 1-комнатной квартиры, 32 м², ул. Ермекова в Караганде - фото 5
Продажа 1-комнатной квартиры, 32 м², ул. Ермекова в Караганде - фото 6
Продажа 1-комнатной квартиры, 32 м², ул. Ермекова в Караганде - фото 7
Продажа 1-комнатной квартиры, 32 м², ул. Ермекова в Караганде - фото 8
Продажа 1-комнатной квартиры, 32 м², ул. Ермекова в Караганде - фото 9
Продажа 1-комнатной квартиры, 32 м², ул. Ермекова в Караганде - фото 10
Продажа 1-комнатной квартиры, 32 м², ул. Ермекова в Караганде - фото 11