Аренда , 3611 м², ул. Закарпатская, дом 1

5 000 ₸/м²
г. Алматы, Турксибский р-н на карте
Улица
ул. Закарпатская, 1
Площадь
3 611 м²
Что именно
Склад
Наличие ж/д тупика
без ж/д тупика
В залоге
Нет
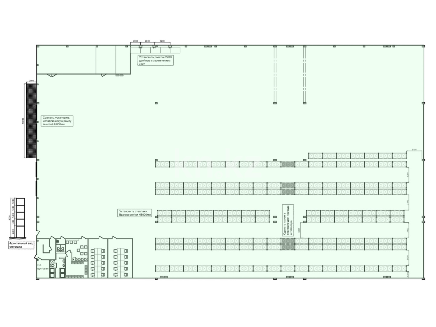
Аренда склада в комплексе Logistic Park ILP Group

Сухой склад класса А. Отличная транспортная доступность ко всем основным дорожным развязкам города.

Ключевые параметры:
Площадь - 3 611 м²
Ставка аренды: 5000 тенге за 1м² - без комиссии, напрямую с собственником.
Уровень пола: 1.2 метра
Нагрузка на пол: 5 на квадратный метр
Высота потолков: 11 метров

Без комиссии и переплат. Подписание договора напрямую с собственником.

Звоните, мы оперативно организуем просмотр в удобную для вас дату и ответим на все интересующие вопросы.
Опубликовано: 11.12.2025
Номер объявления: 3594092

Агентство недвижимости Bright Rich | CORFAC International

Агентство недвижимости Bright Rich | CORFAC International
Закажите обратный звонок
+7 771 Показать телефон

Пожаловаться на объявление
Аренда , 3611 м², ул. Закарпатская, дом  1 в Алматы
Аренда , 3611 м², ул. Закарпатская, дом  1 в Алматы - фото 2
Аренда , 3611 м², ул. Закарпатская, дом  1 в Алматы - фото 3
Аренда , 3611 м², ул. Закарпатская, дом  1 в Алматы - фото 4
Аренда , 3611 м², ул. Закарпатская, дом  1 в Алматы - фото 5
Аренда , 3611 м², ул. Закарпатская, дом  1 в Алматы - фото 6
Аренда , 3611 м², ул. Закарпатская, дом  1 в Алматы - фото 7
Аренда , 3611 м², ул. Закарпатская, дом  1 в Алматы - фото 8
Аренда , 3611 м², ул. Закарпатская, дом  1 в Алматы - фото 9