Аренда , 3500 м², Кульджинский тракт, дом 200

5 700 ₸/м²
г. Алматы, Талгарский р-н на карте
Улица
Кульджинский тракт, 200
Площадь
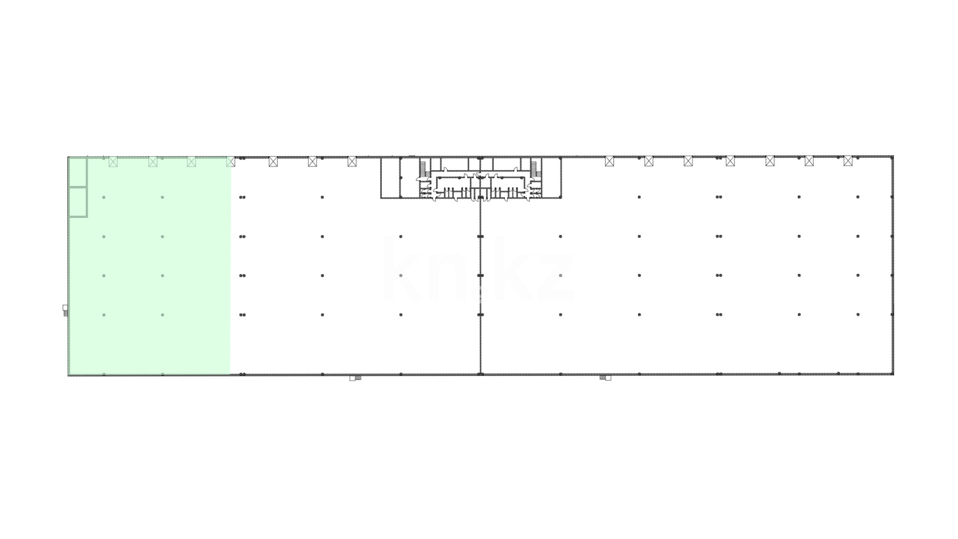
3 500 м²
Что именно
Склад
Наличие ж/д тупика
без ж/д тупика
В залоге
Нет
Аренда сухого склада класса А в комплексе Евразийский Логистический Парк.

Отличная транспортная доступность: 5 километров до БАКАД, 22 километра до международного аэропорта Алматы.

Ключевые параметры:
Площадь - 3 500 м²
Арендная ставка: 5700 тенге за за 1м² - без комиссии, напрямую с собственником.
Шаг колонн: 12х24 м
Нагрузка на пол: 8 тонн/м²
Система пожаротушения: внешние гидранты и внутренние пожарные краны, спринклерная

Без комиссии и переплат. Подписание договора напрямую с собственником.

Звоните, мы оперативно организуем просмотр в удобную для вас дату и ответим на все интересующие вопросы.
Опубликовано: 28.10.2025
Номер объявления: 3559987

Агентство недвижимости Bright Rich | CORFAC International

Агентство недвижимости Bright Rich | CORFAC International
Закажите обратный звонок
+7 771 Показать телефон

Пожаловаться на объявление
Аренда , 3500 м², Кульджинский тракт, дом  200 в Алматы
Аренда , 3500 м², Кульджинский тракт, дом  200 в Алматы - фото 2
Аренда , 3500 м², Кульджинский тракт, дом  200 в Алматы - фото 3
Аренда , 3500 м², Кульджинский тракт, дом  200 в Алматы - фото 4
Аренда , 3500 м², Кульджинский тракт, дом  200 в Алматы - фото 5
Аренда , 3500 м², Кульджинский тракт, дом  200 в Алматы - фото 6
Аренда , 3500 м², Кульджинский тракт, дом  200 в Алматы - фото 7
Аренда , 3500 м², Кульджинский тракт, дом  200 в Алматы - фото 8
Аренда , 3500 м², Кульджинский тракт, дом  200 в Алматы - фото 9
Аренда , 3500 м², Кульджинский тракт, дом  200 в Алматы - фото 10
Аренда , 3500 м², Кульджинский тракт, дом  200 в Алматы - фото 11