Продажа 1-комнатной квартиры, 34 м², ул. Сатыбалдина

13 500 000 ₸ / 397 059 ₸ за м²
г. Караганда, Юго-Восток
Улица
ул. Сатыбалдина
Количество комнат
1
Этаж
8 из 9
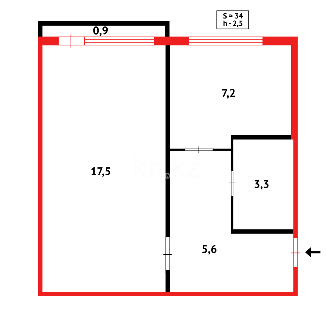
Площадь
34 м², кухня – 7 м²
Год постройки
1974
Тип дома
панельный
Площадь кухни
7
Состояние
хороший ремонт
Санузел
совместный
Балкон
лоджия
В залоге
Нет
Продаётся уютная 1-комнатная квартира с хорошим ремонтом— идеальный вариант для жизни или инвестиций!
Светлая и тёплая 1-комнатная квартира общей площадью 34,1 кв. м.
Комфортная планировка включает просторную кухню площадью 7,4 кв. м, где вы сможете с удовольствием готовить и проводить время с семьёй.
Основные преимущества квартиры:
Квартира без дополнительных вложений;
Свежий ремонт — выполнена полная замена электропроводки и сантехники, что гарантирует безопасность и комфорт;
Тихий двор — отличное место для отдыха и прогулок, безопасно для детей;
Отличная транспортная доступность и вся необходимая инфраструктура в шаговой доступности — магазины, школы, детские сады, аптеки, остановки общественного транспорта;
Юридическое сопровождение сделки — мы поможем оформить покупку максимально быстро и безопасно;
Поддержка в оформлении ипотеки — есть возможность приобрести квартиру без первоначального взноса, при необходимости поможем с подбором выгодных условий.
Звоните прямо сейчас, чтобы узнать подробности и договориться о просмотре! Ваш новый дом ждёт вас!
Опубликовано: 04.12.2025
Номер объявления: 3591375

Риэлтор агентства недвижимости ЦАН

Риэлтор агентства недвижимости
Дана Есманова
Закажите обратный звонок
+7 701 Показать телефон

Пожаловаться на объявление
Продажа 1-комнатной квартиры, 34 м², ул. Сатыбалдина в Караганде
Продажа 1-комнатной квартиры, 34 м², ул. Сатыбалдина в Караганде - фото 2
Продажа 1-комнатной квартиры, 34 м², ул. Сатыбалдина в Караганде - фото 3
Продажа 1-комнатной квартиры, 34 м², ул. Сатыбалдина в Караганде - фото 4
Продажа 1-комнатной квартиры, 34 м², ул. Сатыбалдина в Караганде - фото 5
Продажа 1-комнатной квартиры, 34 м², ул. Сатыбалдина в Караганде - фото 6
Продажа 1-комнатной квартиры, 34 м², ул. Сатыбалдина в Караганде - фото 7
Продажа 1-комнатной квартиры, 34 м², ул. Сатыбалдина в Караганде - фото 8
Продажа 1-комнатной квартиры, 34 м², ул. Сатыбалдина в Караганде - фото 9
Продажа 1-комнатной квартиры, 34 м², ул. Сатыбалдина в Караганде - фото 10
Продажа 1-комнатной квартиры, 34 м², ул. Сатыбалдина в Караганде - фото 11
Продажа 1-комнатной квартиры, 34 м², ул. Сатыбалдина в Караганде - фото 12