Продажа 2-комнатной квартиры, 62 м², пр. Республики

30 500 000 ₸ / 491 935 ₸ за м²
г. Караганда, Юго-Восток
Улица
пр. Республики
Количество комнат
2
Этаж
9 из 17
Площадь
62 м², кухня – 14.8 м²
Год постройки
2025
Тип дома
монолитно-каркасный
Площадь кухни
14.8
Состояние
предчистовая отделка
Санузел
совместный
Балкон
есть
Расположение
неугловая
В залоге
Нет
Продаётся 2-комнатная квартира в самом центре Юго-Востока ЖК Inju City бизнес класса

Характеристики квартиры:

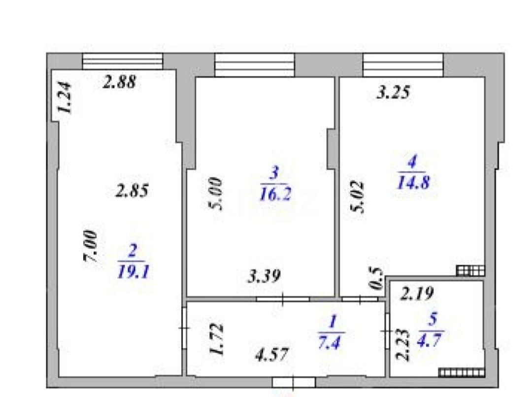
Общая площадь: 62.2 кв.м
Жилая комната: 17.9 кв.м
Гостиная: 16.2 кв.м
Кухня: 15.4 кв.м
Коридор: 8 кв.м
Санузел: 4.6 кв.м
Высота потолков: 3 м

Состояние: предчистовая отделка (стены покрыты штукатуркой в один слой)
Отопление: биметаллические радиаторы, приточки
Окна: большие, обеспечивают отличное естественное освещение
Входная дверь: высокая, прочная, стильная
Коммуникации: установлены счётчики холодной и горячей воды с модемом (автоматическая передача показаний), домофон
Инфраструктура дома:

Лифты: грузовой и пассажирский (на время ремонта жителей будут защищены обшивкой)
Общий стиль: стильные коридоры, картины на этажах, продуманный дизайн
Безопасность: сигнализация на каждом этаже и балконе, тамбур на 1 этаже
Инженерные системы: генераторы для лифтов, воды и отопления
Двор: просторный и благоустроенный, большой паркинг.

🔑 Квартира полностью готова к проживанию
📄 Юридическое сопровождение сделки — безопасность и прозрачность
🏦 Помощь в оформлении ипотеки, в том числе без первоначального взноса
Готовы организовать оперативный просмотр в удобное для вас время.
Не упустите шанс приобрести по-настоящему качественное жильё — звоните прямо сейчас!
Опубликовано: 03.12.2025
Номер объявления: 3590722

Риэлтор агентства недвижимости ЦАН

Риэлтор агентства недвижимости
Дидар Абдуалиев
Закажите обратный звонок
+7 777 Показать телефон

Пожаловаться на объявление
Продажа 2-комнатной квартиры, 62 м², пр. Республики в Караганде
Продажа 2-комнатной квартиры, 62 м², пр. Республики в Караганде - фото 2
Продажа 2-комнатной квартиры, 62 м², пр. Республики в Караганде - фото 3
Продажа 2-комнатной квартиры, 62 м², пр. Республики в Караганде - фото 4
Продажа 2-комнатной квартиры, 62 м², пр. Республики в Караганде - фото 5
Продажа 2-комнатной квартиры, 62 м², пр. Республики в Караганде - фото 6
Продажа 2-комнатной квартиры, 62 м², пр. Республики в Караганде - фото 7
Продажа 2-комнатной квартиры, 62 м², пр. Республики в Караганде - фото 8
Продажа 2-комнатной квартиры, 62 м², пр. Республики в Караганде - фото 9
Продажа 2-комнатной квартиры, 62 м², пр. Республики в Караганде - фото 10
Продажа 2-комнатной квартиры, 62 м², пр. Республики в Караганде - фото 11
Продажа 2-комнатной квартиры, 62 м², пр. Республики в Караганде - фото 12
Продажа 2-комнатной квартиры, 62 м², пр. Республики в Караганде - фото 13
Продажа 2-комнатной квартиры, 62 м², пр. Республики в Караганде - фото 14
Продажа 2-комнатной квартиры, 62 м², пр. Республики в Караганде - фото 15
Продажа 2-комнатной квартиры, 62 м², пр. Республики в Караганде - фото 16
Продажа 2-комнатной квартиры, 62 м², пр. Республики в Караганде - фото 17
Продажа 2-комнатной квартиры, 62 м², пр. Республики в Караганде - фото 18