Продажа 2-комнатной квартиры, 45 м²

пр. Строителей, г. Караганда, Юго-Восток
Продажа 2-комнатной квартиры, 45 м² в Караганде
2-комн. квартира
45 м² площадь
6 м² кухня
7 из 9 этаж
1974 год постройки
Продам 2-х комнатную квартиру на пр. Строителей!

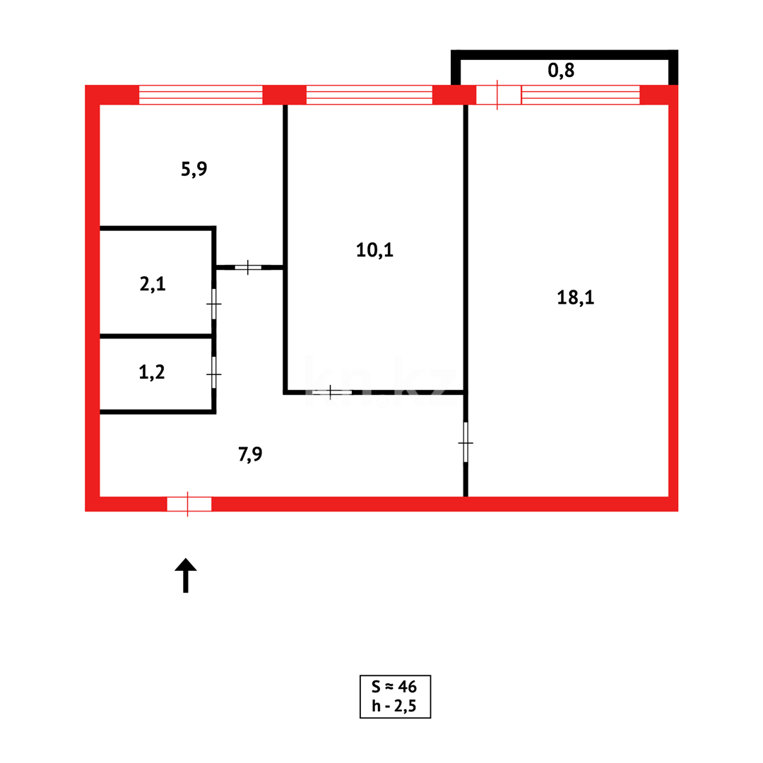
Предлагаем к покупке уютную 2х-комнатную квартиру, расположенную на 7 этаже кирпичного дома 1974 года постройки. Общая площадь 46 кв.м. Квартира с удобной раздельной планировкой: раздельный санузел, установлены пластиковые окна, имеется балкон. Квартира ориентирована на солнечную сторону, что делает её светлой и тёплой. В доме функционирует лифт.

Квартира предоставляет отличные возможности для реализации ремонта по вашему вкусу и созданию идеального жилого пространства.

Инфраструктура:

В шаговой доступности (2-15 минут ходьбы) супермаркеты «Аян» и «Корзина», а также детские сады «Erfolg», «Гульдер» и «Солнышко».

В 10 минутах от дома школа №27 и лицей №57.

Рынок «Арай» и поликлиника №15 также находятся вблизи.

Сквер Строителей — отличное место для прогулок и отдыха.

Транспортная доступность:

Остановка общественного транспорта «Рынок Арай» — 3 минуты пешком, а также остановка «улица Муканова» в непосредственной близости.

Документы готовы к сделке. Рассматриваем все варианты оплаты: наличный расчёт и ипотеку. Мы поможем с оформлением!
О квартире
Адрес
пр. Строителей
Количество комнат
2
Этаж
7
Площадь
45 м², кухня – 6 м²
Состояние
Без ремонта
Санузел
Раздельный
Балкон
Есть
В залоге
Нет
О доме
Тип дома
Кирпичный
Этажность
10
Лифт
Пассажирский
Отопление
Центральное
Высота потолков
2.5 м
Год постройки
1974
Опубликовано: 14.04.2026
Номер объявления: 3643865
Пожаловаться на объявление
14 800 000 ₸
328 889 ₸ за м²
+7 777 Показать телефон
Закажите обратный звонок
Риэлтор агентства недвижимости ЦАН
Агентство недвижимости ЦАН

Риэлтор агентства недвижимости
Риэлтор
Карина Кирпиченко
Был в сети вчера
5.0
1 отзыв
на kn.kz
1 год и 11 месяцев
в работе

Похожие объявления

6 фото
Есть видео
12 900 000 ₸
1-комн.
4/5 эт.
31 м²
6 фото
Есть видео
29 500 000 ₸
3-комн.
7/10 эт.
67 м²
13 фото
17 800 000 ₸
3-комн.
5/5 эт.
46 м²
7 фото
18 900 000 ₸
1-комн.
6/9 эт.
36 м²
13 фото
15 500 000 ₸
2-комн.
5/5 эт.
42 м²
11 фото
18 800 000 ₸
2-комн.
5/5 эт.
52 м²
5 фото
28 500 000 ₸
3-комн.
1/8 эт.
76 м²
13 фото
Есть видео
26 500 000 ₸
2-комн.
1/16 эт.
66 м²
11 фото
49 000 000 ₸
4-комн.
2/10 эт.
114 м²
14 фото
27 000 000 ₸
2-комн.
6/10 эт.
60 м²