Когда люди задумываются о ремонте, главный вопрос почти всегда упирается в бюджет: как не выйти за его рамки. На этом фоне отказ от дизайн-проекта кажется логичной экономией. Возникает мысль: зачем платить за дополнительные услуги, если можно ориентироваться на картинки из интернета и самостоятельно выбрать материалы?
Разбираемся, что включает дизайн-проект, с какими проблемами можно столкнуться без него и есть ли ситуации, когда без него действительно можно обойтись.
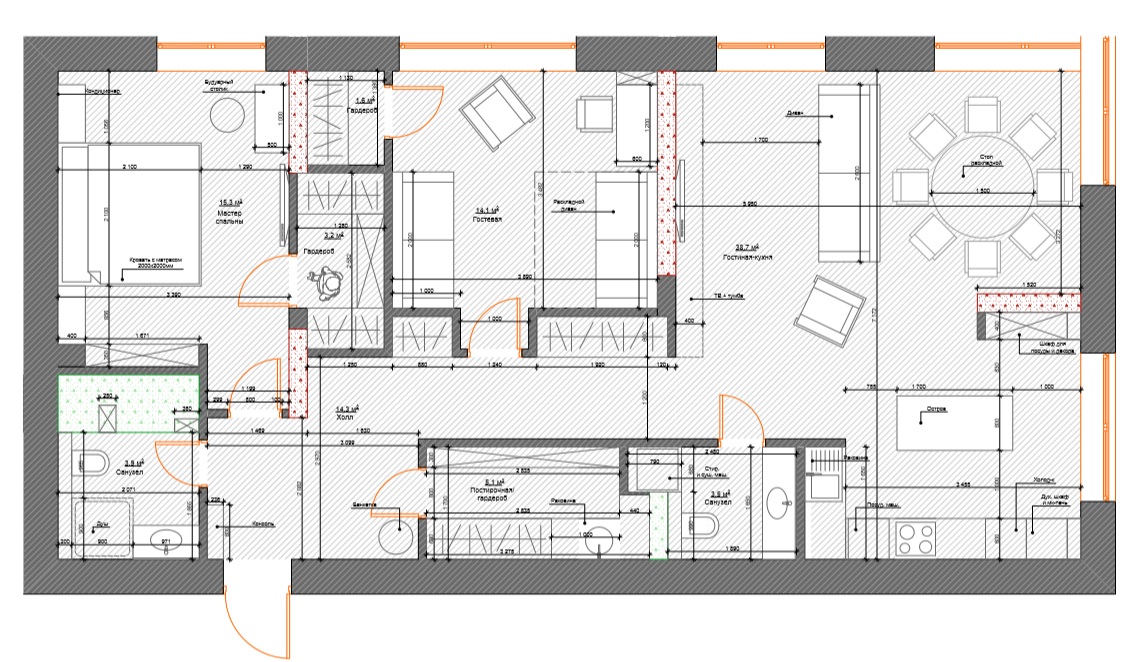
Что такое дизайн-проект на практике
Дизайн-проект — это не просто красивые картинки будущего интерьера. По сути, это детально проработанный сценарий ремонта с технической частью, где заранее продуманы все этапы и решения. В базовом варианте он включает несколько ключевых блоков.
Как не остаться без жилья: новые схемы мошенничества >>>
Планировочное решение
Это точный чертеж помещения с размерами и всеми конструктивными особенностями: стенами, проемами, нишами, стояками и вентиляцией. Такой план задает основу для всех дальнейших работ.
Расстановка мебели
Важно не только «вписать» предметы в пространство от крупной мебели (кровать, диван, шкафы) до обеденной группы, но и обеспечить удобство передвижения и повседневного использования.
Электрика: розетки и выключатели
Здесь все электроточки привязываются к будущей мебели и технике, чтобы не оказалось, что розетка спрятана за шкафом или выключатель расположен в неудобном месте.

Сценарии освещения
Прорабатывается расположение светильников и варианты управления светом: основной, локальный, декоративный. Это позволяет создать комфортную атмосферу и адаптировать освещение под разные задачи — от работы до отдыха.
Подбор материалов
Даются рекомендации по отделке и оборудованию: от напольных покрытий и плитки до сантехники и дверей. Обычно указываются конкретные коллекции или хотя бы характеристики, цвета и стилистика.
Визуализация
Фотореалистичные изображения, которые показывают, как будет выглядеть интерьер после ремонта. Они помогают заранее оценить итоговый результат и при необходимости внести изменения до начала работ.
— С дизайн-проектом ремонт проходит спокойнее и предсказуемее, — считает архитектор-дизайнер, руководитель архитектурного бюро «Квадрат» Ксения Рынгач. — У вас меньше поводов для конфликтов — как в семье, так и с подрядчиком. Даже без авторского надзора часть решений всё равно придётся принимать самостоятельно: выбирать оттенки, покрытия, материалы. Но вы опираетесь не на догадки, а на готовую концепцию.
Эксперт отмечает, что по сути, дизайн-проект становится четким ориентиром: это альбом с продуманной идеей интерьера, цветовой схемой и комплектом рабочих чертежей. Благодаря этому риск ошибок существенно снижается: полностью исключить их невозможно, но в большинстве случаев ремонт идет по заранее выверенному сценарию.
Как проверить историю квартиры в Казахстане перед покупкой >>>
Сложности при ремонте без проекта
Какие самые большие проблемы можно получить, не заказывая дизайн-проект?
— Прежде всего — непредсказуемый результат, ремонт затягивается, появляются лишние траты, а с подрядчиком возникают недопонимания, — считает Ксения Рынгач. — Отдельная проблема — сложность выбора. Сегодня рынок предлагает огромное количество материалов, цветов, фактур, и без четкой концепции легко потеряться. В результате интерьер может получится неудачным с точки зрения эстетики. На мой взгляд, каждый должен заниматься своим делом: повар — готовить еду, дизайнер и архитектор — проектировать продуманные интерьеры и создавать индивидуальную концепцию для вас.
Вот с какими еще проблемами часто сталкиваются при ремонте без дизайн-проекта:
- Розетки оказываются в неудобных местах — за мебелью или вне зоны доступа.
- Кухонный гарнитур не встаёт в отведённое пространство из-за неучтённых труб, вентиляции или выступов.
- Выключатели расположены нелогично, а света не хватает в ключевых зонах.
- Ошибки в электрике приводят к переделкам уже после чистовой отделки.
- Мебель не подходит по габаритам.
- Закупки идут хаотично: возникают либо излишки, либо нехватка материалов.
В каких случаях можно обойтись без проекта
В ряде случаев можно обойтись без дизайн-проекта — если задачи простые и не требуют сложных решений.
Косметический ремонт. Если вы не меняете планировку, не переносите коммуникации и просто обновляете отделку (краска, обои, пол).
Ремонт в небольших помещениях с понятной функцией: санузел, кладовая, балкон. При условии, что там нет сложных инженерных задач и вы четко понимаете, что и где будет находиться.
«Базовый» ремонт при сильно ограниченном бюджете. Но здесь стоит понимать: экономия на проекте часто оборачивается дополнительными расходами в процессе.
— Обойтись без дизайн-проекта можно в случае вашего личного опыта в подобного рода задачах: ремонте, дизайне, заказе мебели и всего прочего, — отмечает Ксения Рынгач. — Если у вас нет возможности приобрести полноценный проект, я рекомендую хотя бы заказать планировочное решение, где специалист продумает эргономику пространства, расставит мебель, сделает схему электрики и привязки сантехники. Вы будете понимать, как пространство работает на вас. Если вы примите решение двигаться в реализации ремонта самостоятельно, то вы хотя бы будете иметь технические чертежи.
Рынок жилья Казахстана в марте: сделки, цены, тенденции >>>
Сколько стоит в среднем дизайн-проект в столице и в регионах
Средняя стоимость дизайн-проекта в Казахстане сильно зависит от уровня студии, состава проекта и города, но, согласно предлагаемым прайсам, можно выделить следующие диапазоны.
Астана
В столице цены — одни из самых высоких по стране:
- Базовый проект: примерно 5 000 – 8 000 тг/кв.м;
- Стандарт (с визуализациями): 8 000 – 12 000 тг/кв.м;
- Премиум: 12 000 – 18 000 тг/кв.м и выше.
В среднем по рынку:
- полный дизайн-проект — 17 000 – 28 000 тг/кв.м;
- проекты «под ключ» с сопровождением — до 30 000+ тг/кв.м.
При этом минимальные предложения на фрилансе могут начинаться от 2 000-5 000 тг/кв.м, но это, как правило, урезанный состав проекта.
Регионы Казахстана
В регионах (Караганда, Шымкент, Павлодар и др.) цены обычно ниже на 20-40%:
- Базовый уровень: 4 000 – 8 000 тг/кв.м;
- Стандарт: 8 000 – 12 000 тг/кв.м;
- Полный проект: в среднем от 12 000 – 20 000 тг/кв.м.
Например, в Алматы:
- стандартный проект — от 10 000 тг/кв.м;
- полный — от 15 000 тг/кв.м.
Как это выглядит в деньгах
- квартира 50 кв.м в Астане — примерно 250 000 – 900 000 тг за проект;
- та же площадь в регионе — чаще 200 000 – 600 000 тг.
Цена всегда зависит от:
- состава проекта (только планировки или полный комплект чертежей + 3D);
- количества визуализаций;
- уровня студии;
- сложности объекта.
— На сегодняшний день реализация дизайн-проекта стоит от 150 до 800 тысяч тг/кв.м, — отмечает Ксения Рынгач. — В эту сумму, как правило, включена отделка, работа строительной бригады, дизайнера и мебель. Какой у вас бюджет на ремонт, такой и будет уровень реализации.
Нужен ли авторский надзор
Авторский надзор — это сопровождение ремонта дизайнером или архитектором, который разработал проект, чтобы результат в точности соответствовал задумке. Проще говоря, специалист не просто сдает альбом чертежей, а участвует в процессе реализации и следит, чтобы строители всё делали правильно.
— Дизайнер при авторском надзоре не следит за качеством ремонта, а следит за соответствием решений, которые вы утвердили, — поясняет Ксения Рынгач. — Он выезжает на квартиру несколько раз в неделю, участвует во встречах с подрядчиками, мебельщиками, отделочниками, декораторами, принимает решения по установке окон, помогает вам в покупке материалов, напольных покрытий, кафеля, светильников, штор, декора, картин и прочего.
Как отмечает эксперт, при авторском надзоре дизайнер имеет право менять утвержденную концепцию согласно выбранным по факту материалам, дорабатывать и улучшать дизайн-проект, который ранее утвержден. То есть дизайнер в авторском надзоре практически круглосуточно с заказчиком, помогает делать выбор и доводит проект до окончательной реализации.
Фото: из личного архива архитектора Ксении Рынгач
Информационная служба kn.kz
