Продажа 3-комнатной квартиры, 83.6 м²

мкр. Зердели, 165, г. Алматы, Алатауский р-н На карте
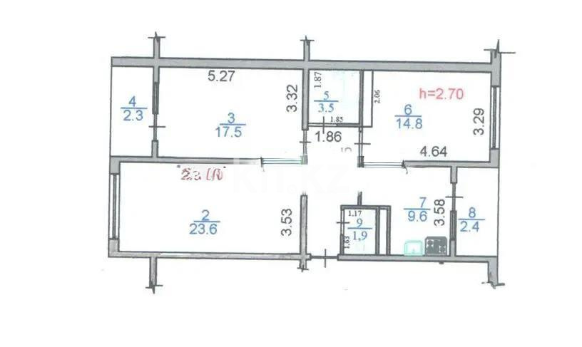
Продажа 3-комнатной квартиры, 83.6 м² в Алматы
3-комн. квартира
83.6 м² площадь
9.6 м² кухня
9 из 9 этаж
2014 год постройки
Продаётся 3-х комнатная квартира.
Особенности квартиры:
* 2 просторных балкона
* Раздельный санузел
* Квартира светлая, тёплая и очень уютная
* Расположена вдали от шумных дорог — тихий и спокойный двор
* Хорошие, спокойные соседи
* Документы в полном порядке, 1 собственник
О квартире
Адрес
мкр. Зердели, 165
Количество комнат
3
Этаж
9
Площадь
83.6 м², кухня – 9.6 м²
Состояние
Хороший ремонт
Санузел
Раздельный
Балкон
Есть
Расположение
Неугловая
В залоге
Нет
Расположение
Загрузка...
Опубликовано: 13.01.2026
Номер объявления: 3567315
Пожаловаться на объявление
40 000 000 ₸
478 469 ₸ за м²
+7 701 Показать телефон

Собственник

Похожие объявления

5 фото
37 700 000 ₸
3-комн.
7/9 эт.
84.8 м²
10 фото
40 000 000 ₸
3-комн.
4/9 эт.
76 м²
2 фото
40 000 000 ₸
3-комн.
5/5 эт.
87 м²
7 фото
40 000 000 ₸
3-комн.
5/5 эт.
88 м²
5 фото
43 500 000 ₸
3-комн.
3/5 эт.
77 м²
6 фото
40 500 000 ₸
3-комн.
7/7 эт.
75.9 м²
5 фото
42 000 000 ₸
3-комн.
4/9 эт.
75 м²
7 фото
43 500 000 ₸
3-комн.
4/4 эт.
88.8 м²
7 фото
40 000 000 ₸
3-комн.
5/9 эт.
78 м²
4 фото
41 000 000 ₸
3-комн.
3/4 эт.
89 м²