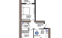
Продажа 3-комнатной квартиры, 64.16 м², пр. Улы Дала, дом 5 стр

38 500 000 ₸ / 600 062 ₸ за м²
г. Астана, р-н Нура на карте
Улица
пр. Улы Дала, 5 стр
Название ЖК
Количество комнат
3
Этаж
5 из 12
Площадь
64.16 м², кухня – 21 м²
Год постройки
2025
Тип дома
монолитно-каркасный
Площадь кухни
21
Состояние
черновая улучшенная отделка
Санузел
совместный
Балкон
лоджия
Расположение
неугловая
В залоге
Нет
Опубликовано: 21.11.2025
Номер объявления: 3585870

Частное лицо

+7 775 Показать телефон
Пожаловаться на объявление
Продажа 3-комнатной квартиры, 64.16 м², пр. Улы Дала, дом  5 стр в Астане