Личный кабинет
Регистрация
Новостройки
Застройщики
Продажа
Продажа квартир в Астане
Продажа квартир в Алматы
Продажа квартир в Караганде
Продажа квартир в Темиртау
Аренда
Аренда квартир в Астане
Аренда квартир в Алматы
Аренда квартир в Караганде
Агентства недвижимости
Риэлторы
Добавить объявление
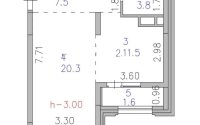
Продажа 1-комнатной квартиры, 44.7 м²
пр. Кабанбай батыра, 63, г. Астана,
р-н Нура
На карте
1-комн.
квартира
44.7 м²
площадь
11.5 м²
кухня
9 из 12
этаж
2025
год постройки
Продаётся 1-комнатная квартира в новом, активно развивающемся районе. Квартира в черновой отделке — вы сможете реализовать любой дизайн-проект под свой вкус. Из окон открывается красивый вид на мечеть.
Читать полностью
Свернуть
О квартире
Адрес
пр. Кабанбай батыра, 63
Название ЖК
Яссауи
Количество комнат
1
Этаж
9
Площадь
44.7 м², кухня – 11.5 м²
Состояние
Черновая улучшенная отделка
Санузел
Совместный
Балкон
Есть
Расположение
Неугловая
В залоге
Нет
О ЖК Яссауи
Класс ЖК
Комфорт
Тип дома
Блочный
Этажность
12, 16
Паркинг
Подземный
Лифт
Пассажирский и грузовой
Отопление
Центральное
Высота потолков
3 м
Квартир в доме
295
Год постройки
2025
Подробнее о ЖК
Расположение
Загрузка...
Опубликовано: 10.04.2026
Номер объявления: 3642249
Пожаловаться на объявление
На что хотите пожаловаться?
Загрузка...
28 000 000 ₸
Добавить в избранное
Добавлять в избранное могут только зарегистрированные пользователи. Пожалуйста, авторизуйтесь или зарегистрируйтесь
kn.kz
626 398 ₸ за м²
+7 701
Показать телефон
Собственник
Похожие объявления
4 фото
27 800 000 ₸
1-комн.
9/12
эт.
38 м²
пр. Кабанбай батыра, 59/3 - Кабанбай батыр
4 фото
28 000 000 ₸
1-комн.
2/12
эт.
40 м²
пр. Кабанбай батыра, 59
3 фото
28 000 000 ₸
1-комн.
8/12
эт.
38 м²
пр. Кабанбай батыра, 59
4 фото
26 800 000 ₸
1-комн.
7/12
эт.
37.7 м²
пр. Кабанбай батыра, 59/1
Статьи
13 апреля 2026, 08:15
Рынок жилья Казахстана в марте: сделки, цены, тенденции
9 апреля 2026, 18:35
Что происходит с ценами на рынке недвижимости в Казахстане
6 апреля 2026, 07:50
Как проверить историю квартиры в Казахстане перед покупкой
2 апреля 2026, 09:00
Покупка квартиры детям на будущее: плюсы и минусы в РК
30 марта 2026, 08:00
Как по договору долевого строительства принять квартиру от застройщика
kn.kz
Продажа квартир в Казахстане
Продажа квартир в Астане
© «
Недвижимость
», 2006–2026
Способы оплаты
Правила и тарифы (Оферта)
Правовая информация
О проекте
Политика конфиденциальности сервисов Kn.kz
Реклама на сайте
PR-статьи
Карта сайта
Импорт объявлений из XML
Мобильная версия сайта
info@kn.kz
Телефон поддержки:
+7-7000-877-877
с 09:00 до 18:00 в рабочие дни
Мы в соцсетях:
Скачайте бесплатное
приложение kn.kz
Недвижимость Казахстана
Покупка, продажа и аренда недвижимости в Астане, Алматы, Караганде и других городах Казахстана.