Продажа 3-комнатной квартиры, 78.8 м²

ул. Тараз, 8/1 стр, г. Алматы, Турксибский р-н На карте
Продажа 3-комнатной квартиры, 78.8 м² в Алматы
3-комн. квартира
78.8 м² площадь
2 из 6 этаж
2026 год постройки
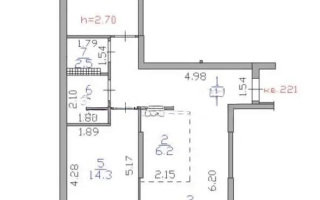
Продаётся просторная, евро-трёхкомнатная квартира, площадью 78,8 кв. м с собственной террасой 20 кв. м (по документам — 2-комнатная) в ЖК Dream City Family (очередь F) от застройщика BI Group. Класс жилья — Комфорт+, высота потолков 3 метра. Возможен торг. Дополнительно есть кладовая на этаже и парковочное место рядом с входом. Передача ключей запланирована на 30 апреля текущего года.
О квартире
Адрес
ул. Тараз, 8/1 стр
Название ЖК
Количество комнат
3
Этаж
2
Площадь
78.8 м²
Состояние
Черновая улучшенная отделка
Санузел
Совместный
Балкон
Нет
Расположение
Неугловая
В залоге
Да
О ЖК Dream City. Family
Класс жилья
Комфорт
Тип дома
Монолитно-каркасный
Этажность
6
Паркинг
Надземный
Лифт
Пассажирский
Окна
Обычные
Отопление
Центральное
Высота потолков
3 м
Подробнее о ЖК
Расположение
Загрузка...
Опубликовано: 31.03.2026
Номер объявления: 3637774
Пожаловаться на объявление
61 000 000 ₸
774 112 ₸ за м²
Аналитика цены
Средняя цена в этом доме
813 255 ₸/м²
-5%
дешевле среднего
Средняя цена в этом районе
694 368 ₸/м²
+12%
дороже среднего
+7 701 Показать телефон

Собственник

Похожие объявления

1 фото
57 000 000 ₸
3-комн.
5/6 эт.
70.46 м²
2 фото
57 500 000 ₸
3-комн.
5/6 эт.
70.3 м²
1 фото
65 000 000 ₸
3-комн.
2/6 эт.
91.48 м²
1 фото
65 000 000 ₸
3-комн.
6/6 эт.
78.13 м²
4 фото
60 000 000 ₸
3-комн.
2/6 эт.
97.36 м²
3 фото
64 000 000 ₸
3-комн.
6/6 эт.
90.65 м²
3 фото
60 000 000 ₸
3-комн.
3/6 эт.
91 м²
4 фото
65 000 000 ₸
3-комн.
3/6 эт.
71 м²
6 фото
61 950 000 ₸
3-комн.
3/6 эт.
91 м²
5 фото
64 900 000 ₸
3-комн.
3/6 эт.
90.67 м²