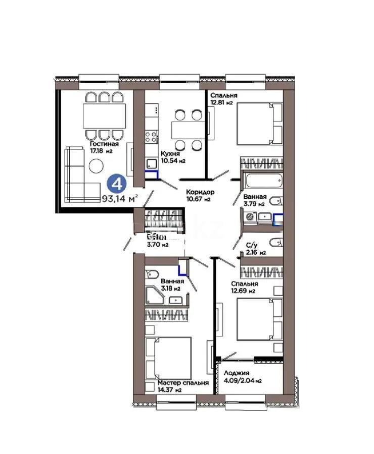
Продажа 4-комнатной квартиры, 93.14 м²

пр. Улы Дала, 5 стр, г. Астана, р-н Нура На карте
Продажа 4-комнатной квартиры, 93.14 м² в Астане
4-комн. квартира
93.14 м² площадь
10.54 м² кухня
8 из 9 этаж
2026 год постройки
Продаётся 4-комнатная квартира комфорт+ класса в перспективном районе (Блок А). О доме: — кирпичный дом — современный жилой комплекс — на этаже всего 3 квартиры — тишина и приватность. О квартире: — формат «распашонка» (окна на две стороны) — не угловая — удобная и функциональная планировка. Срок сдачи: — выдача ключей: 3 квартал 2026 года. Развитая инфраструктура района: рядом активно формируется современный жилой кластер: — строится торговый центр — будущий торговый центр — детский сад — физико-математическая школа — уже построена комфортная школа.
О квартире
Адрес
пр. Улы Дала, 5 стр
Название ЖК
Количество комнат
4
Этаж
8
Площадь
93.14 м², кухня – 10.54 м²
Состояние
Черновая улучшенная отделка
Санузел
Совместный
Балкон
Есть
Расположение
Неугловая
В залоге
Нет
О ЖК ŪIA. TARIH
Класс ЖК
Комфорт
Тип дома
Блочный
Этажность
9, 12
Паркинг
Надземный
Лифт
Пассажирский
Окна
Панорамные
Отопление
Автономное
Высота потолков
3 м
Подробнее о ЖК
Расположение
Загрузка...
Опубликовано: 12.04.2026
Номер объявления: 3643085
Пожаловаться на объявление
56 000 000 ₸
Загрузка...
601 245 ₸ за м²
+7 777 Показать телефон

Собственник

Похожие объявления

1 фото
52 999 990 ₸
4-комн.
3/17 эт.
88.77 м²